Survey on Urban Housing

family dynamics in the domestic space

HOUSEHOLDS

RefSchFloor Plans
1
2
18
19
19
19
19
19
19
20
20
20
3
20
20
20
20
21
21
21b
21
22
3
22
22
22
22
22
22
23
23
23b
23
3b
23
23
23
23
23
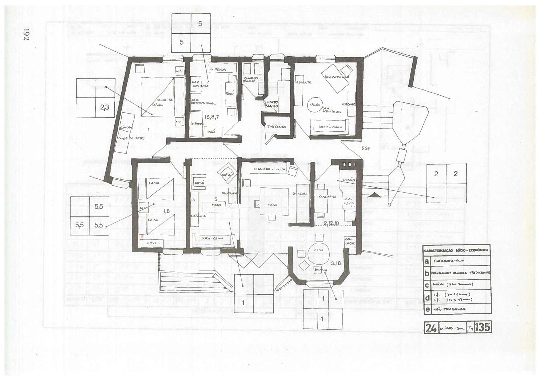
24
24
24
24
24
4
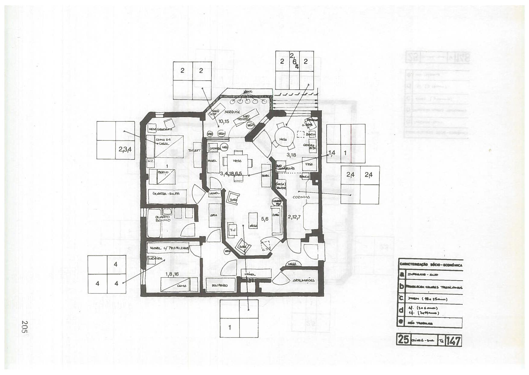
25
25
25
25
25
25
25
25
25
25
4
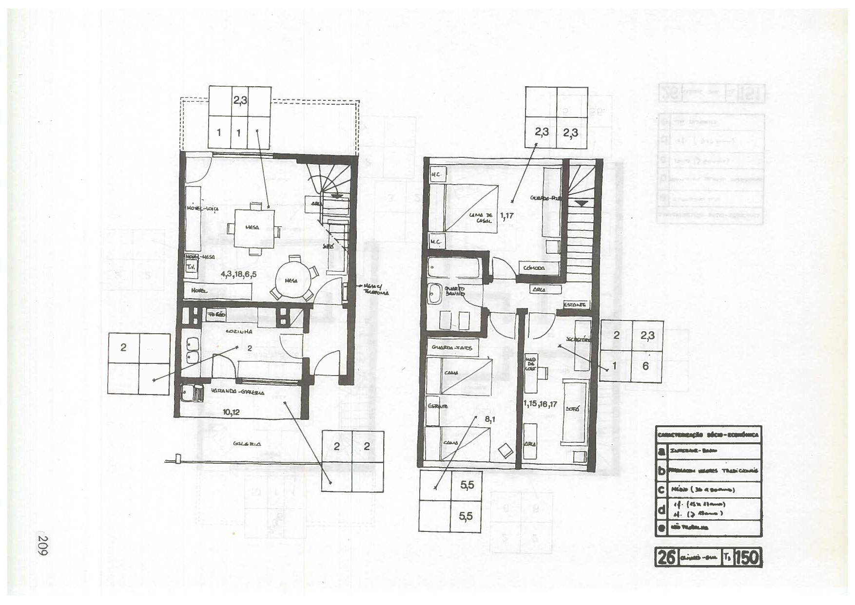
26
26
26
26
26
27
27
27
28b
28a
4
28a
28a
28a
28b
28a
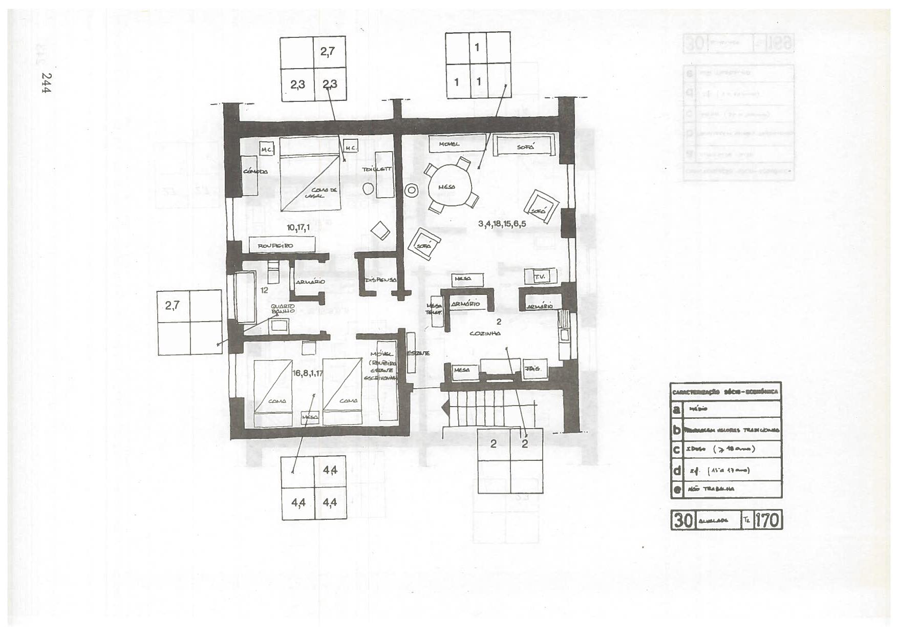
30b
30
30
30
30
4
30
30
30
31
31b
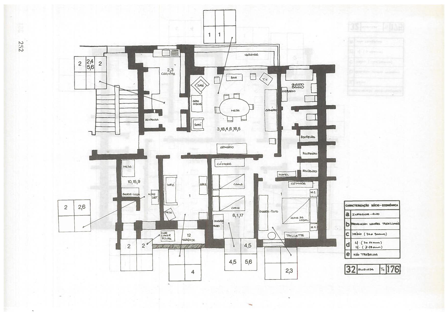
32
32
33
33
33
4
33
34
34
35
35
35
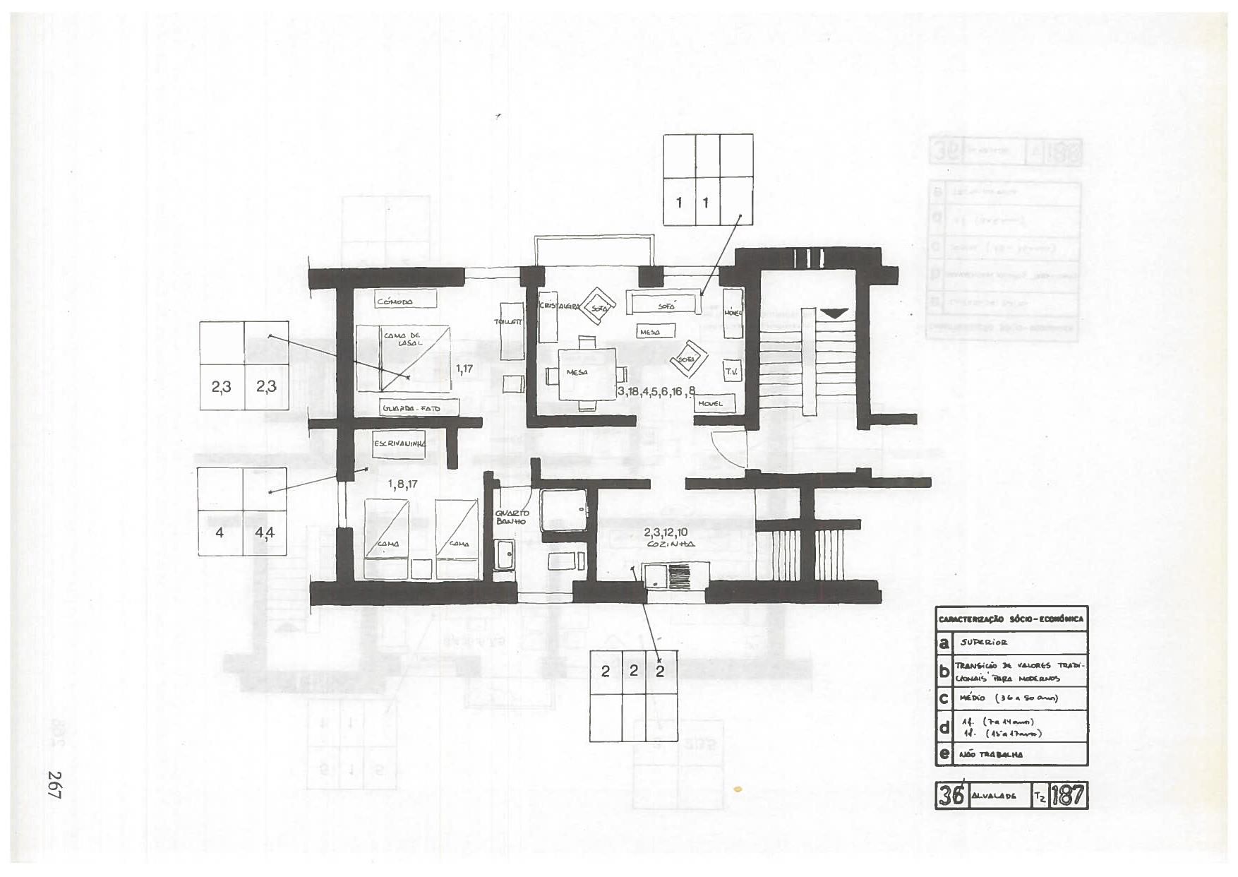
36
36
36
36
4
36
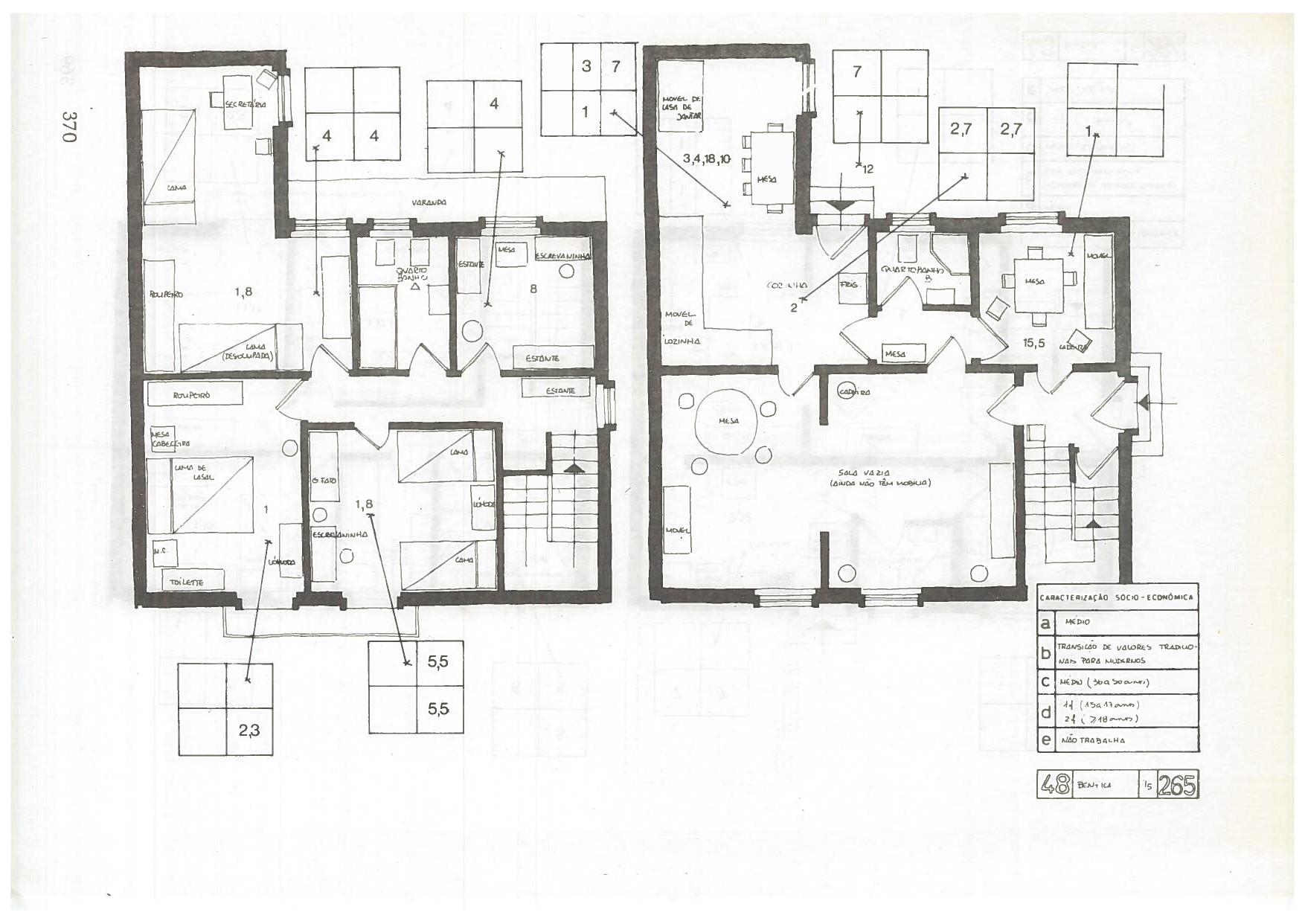
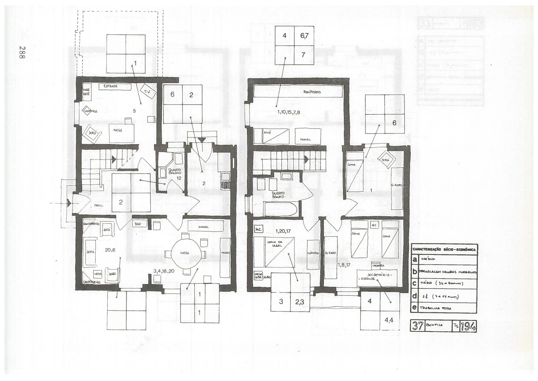
37
37
37
37
37
37
37b
37
37c
1
4b
42
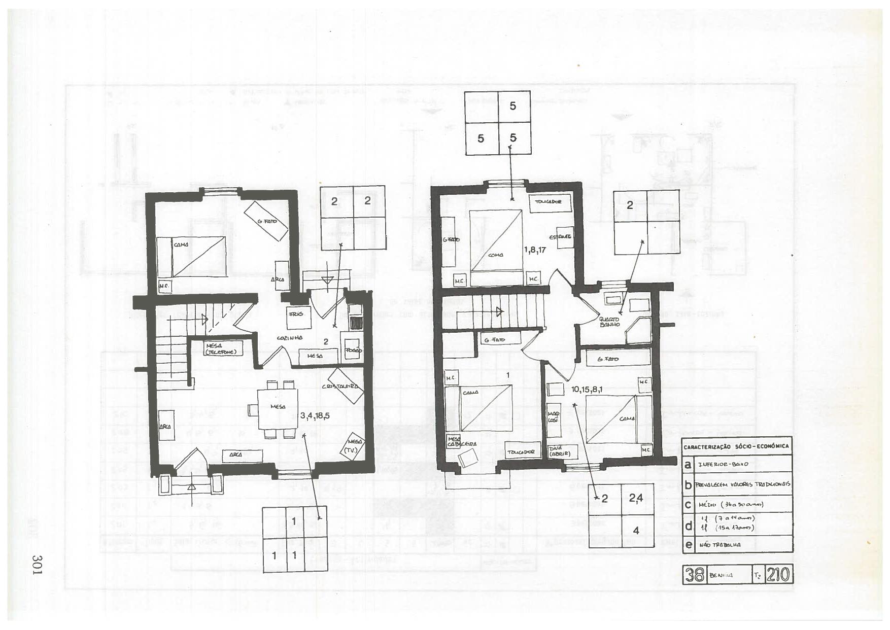
38c
38
38d
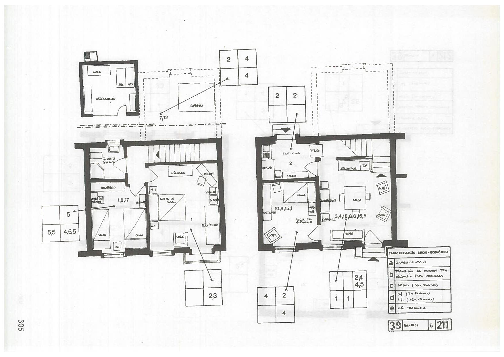
39
38e
39
38f
38b
40
5
38g
39
39b
39
39
39
39
39c
40
40
5
40
40
41
41b
41c
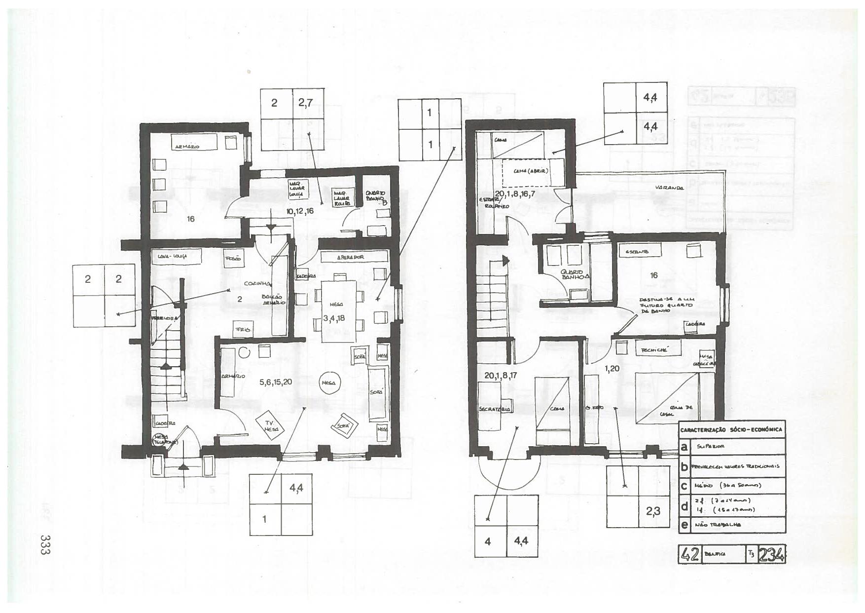
42b
42g
42a
42d
42c
5b
42c
42c
42c
42e
42f
42c
43
43
43a
43
5b
43
43a
43
44b
44
44b
44b
44
44
45
5b
45
46a
46b
46c
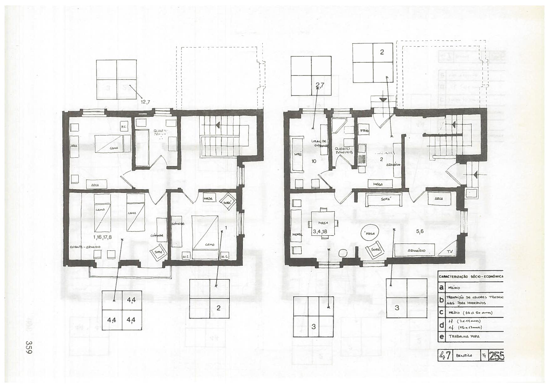
47
47
47
47
47
47
5
47
47
47
48
48
48a
48
48
48
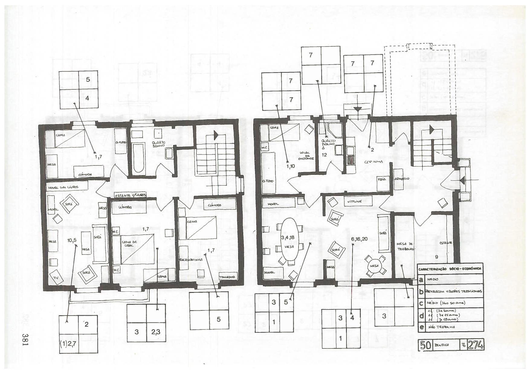
49
6
50b
49
49
49
50b
50b
50b
50b
50b
50b
6
50
50b
6
1
6
6b
6
7
8b
8b
8a
8b
8b
8a
1
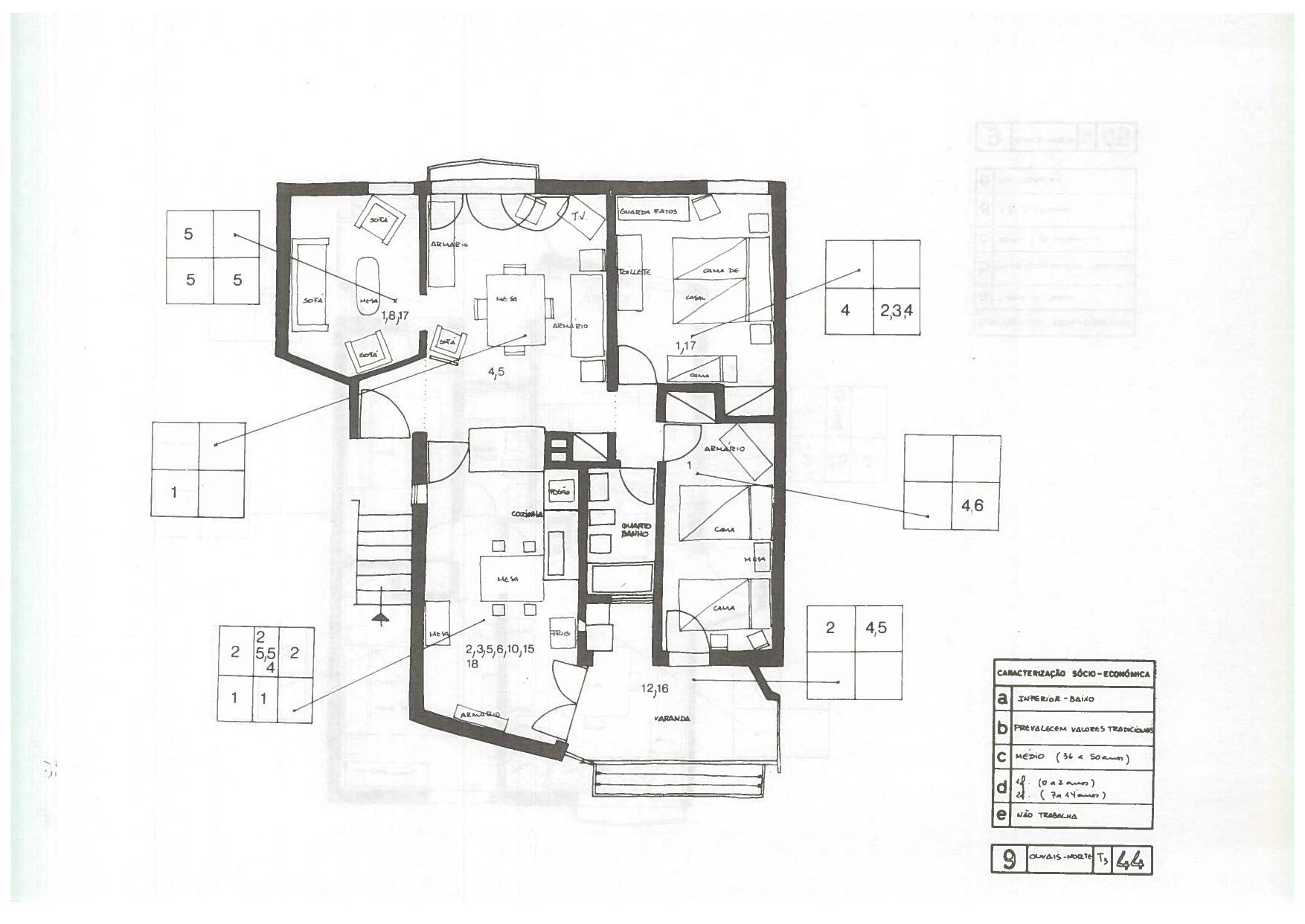
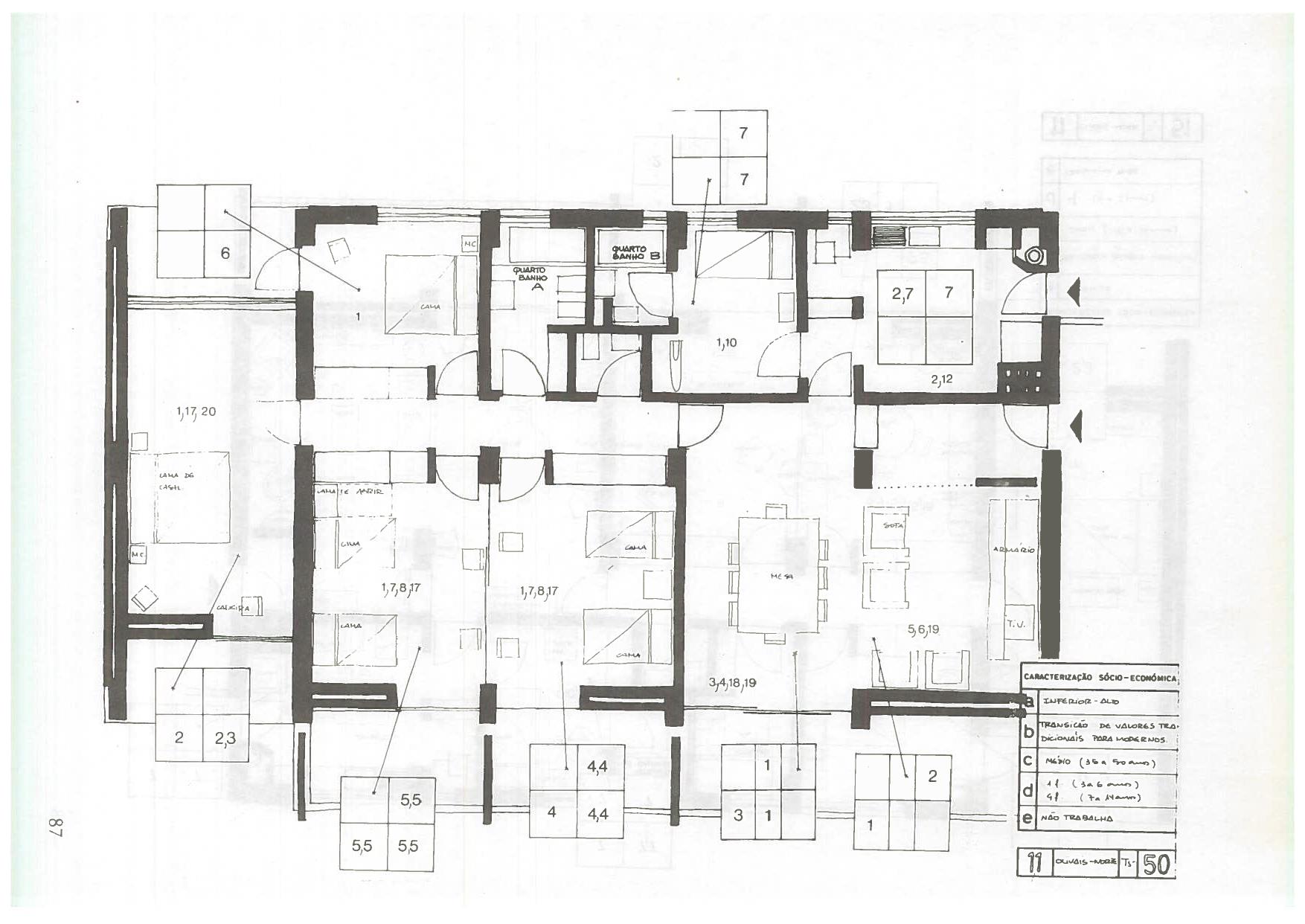
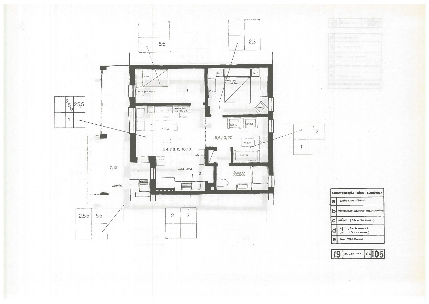
9a
9c
9c
9a
9c
9a
9c
9b
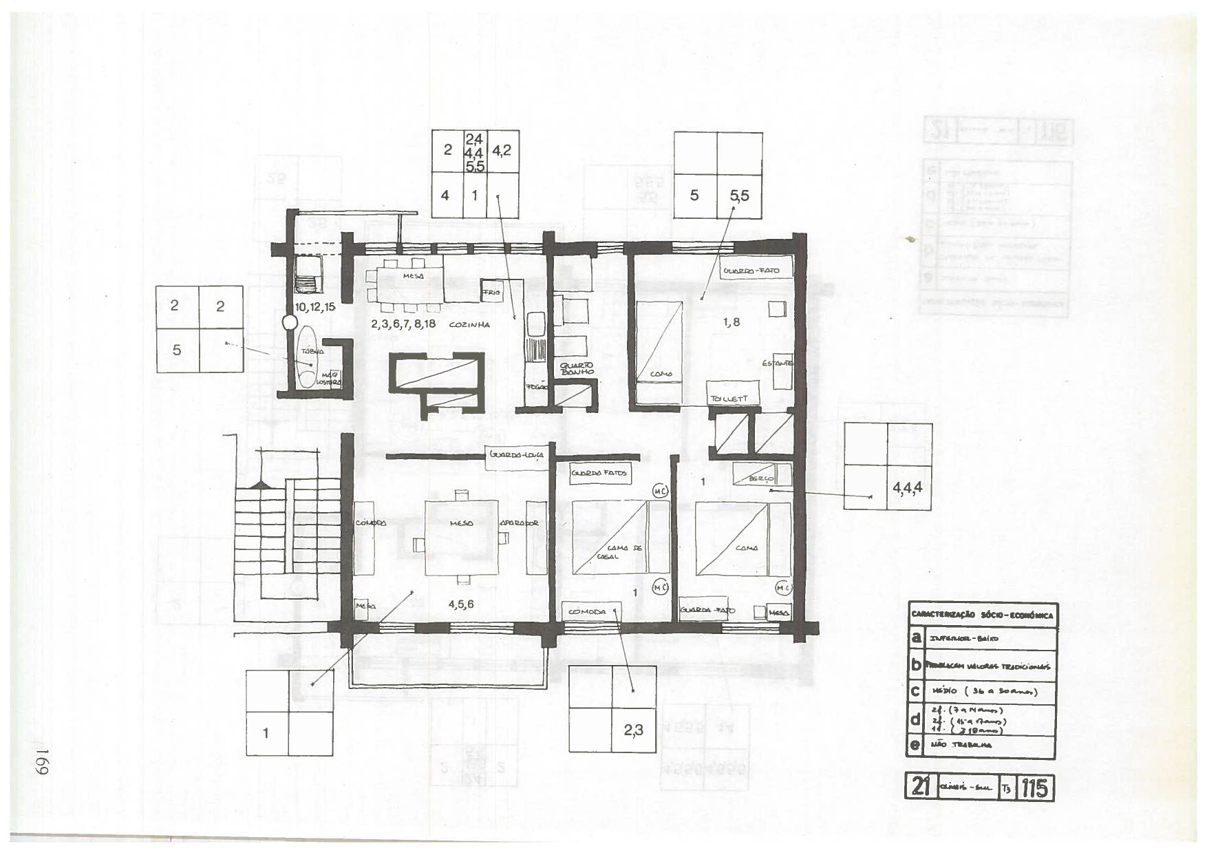
11a
11a
1
11a
11a
11a
10a
10a
10a
11a
11a
10a
12
1
12
12
12
12
12
12
13
13
13
13
1
13
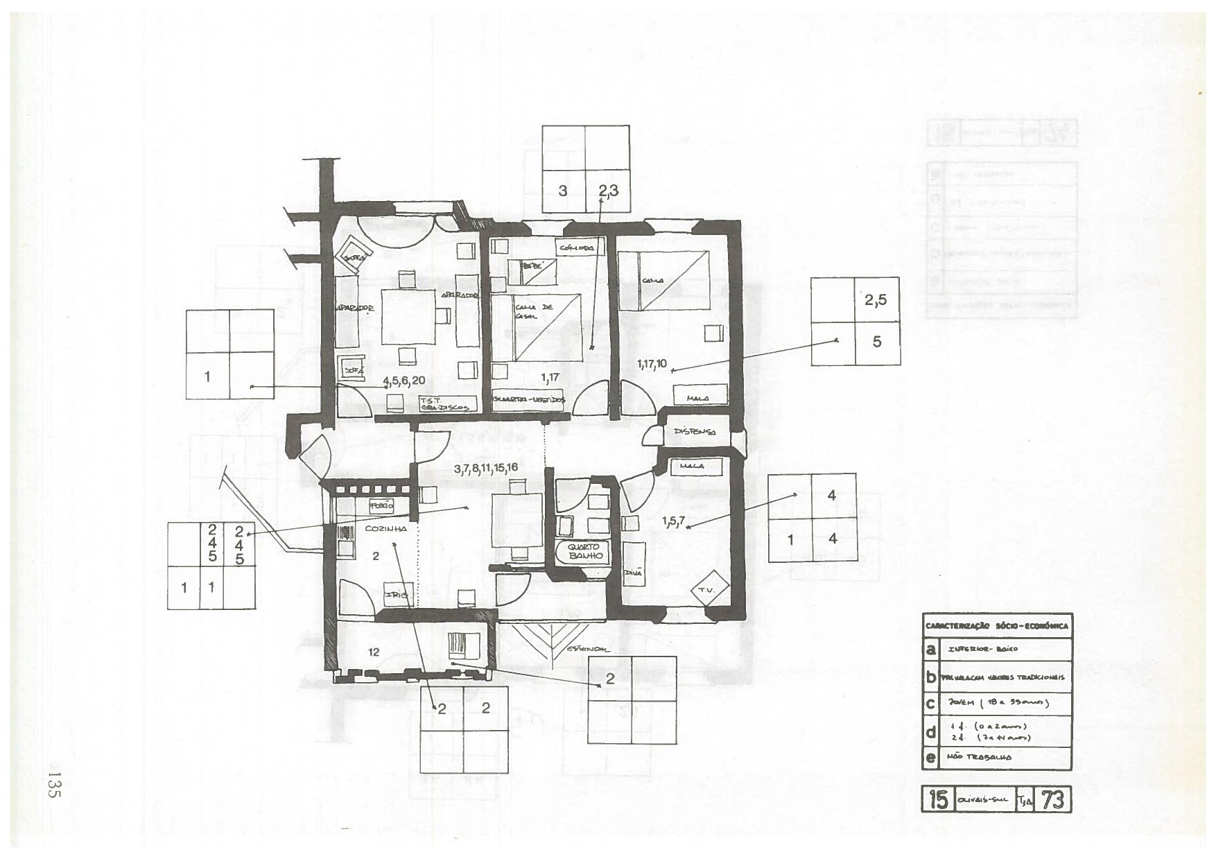
15
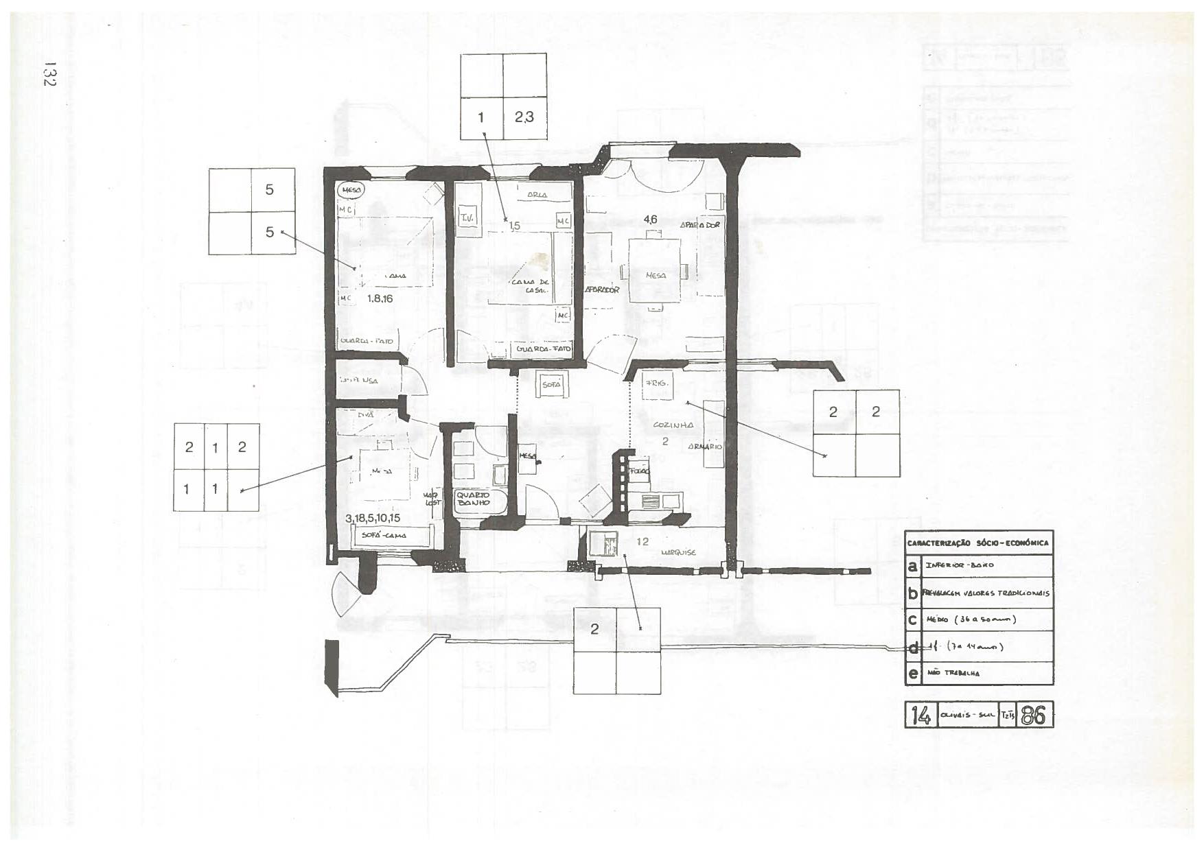
14b
15
15
15
14a
14b
15
14a
1
15
14b
14a
14b
14a
14a
14a
16a
16b
2
17
17
17
17
17
17
17
29
29
29

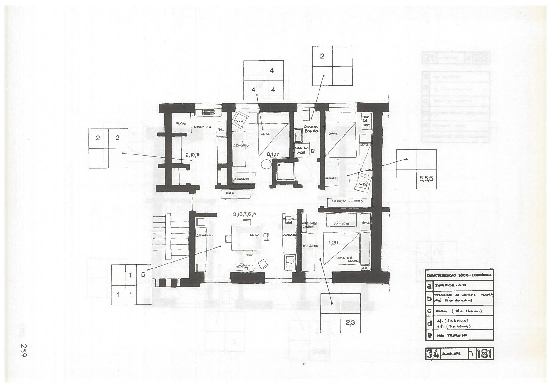
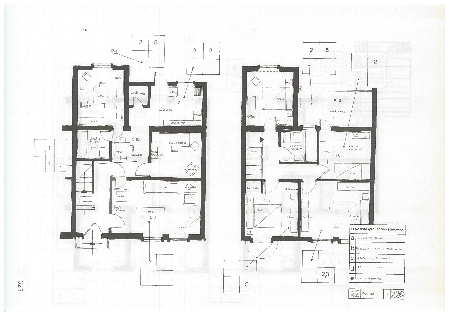
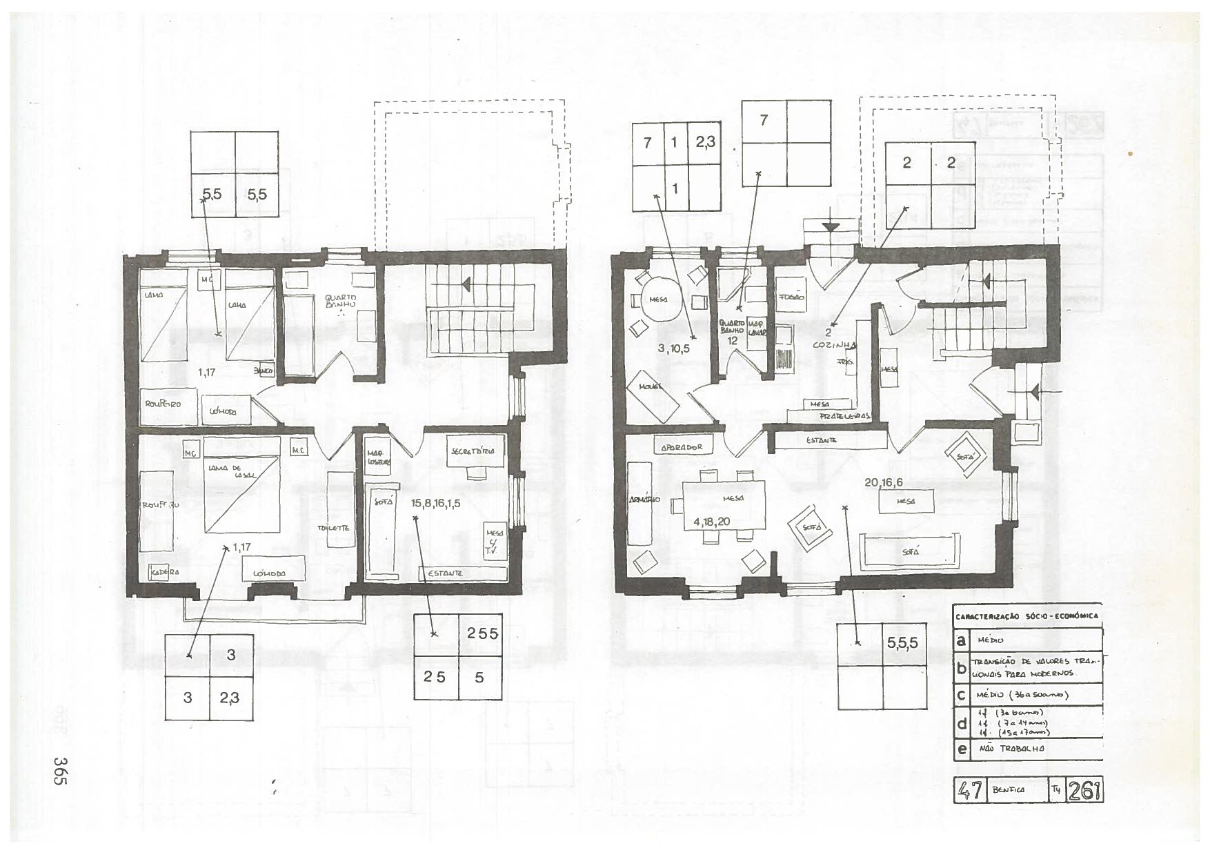
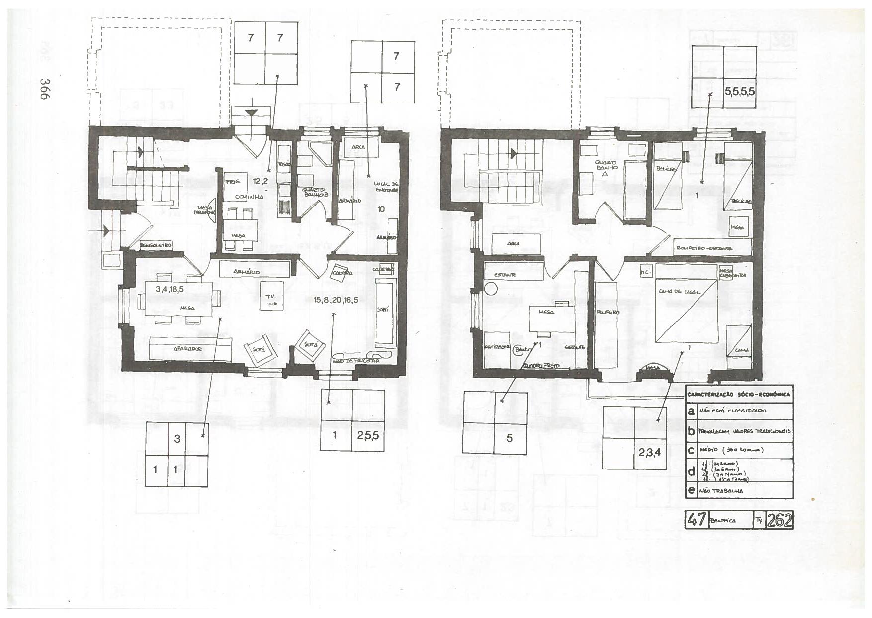
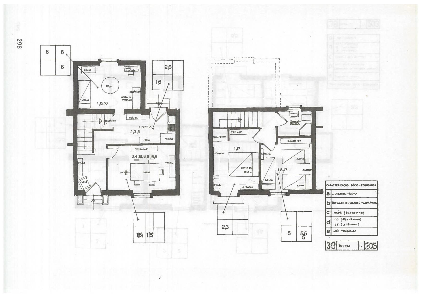
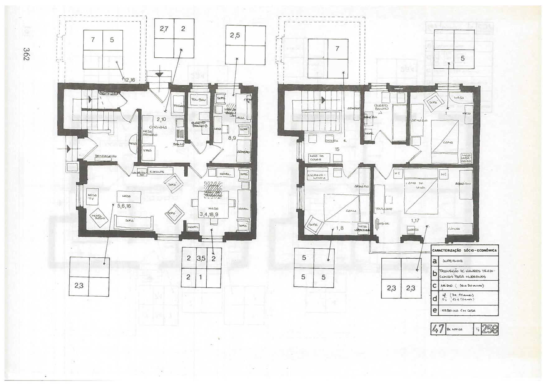
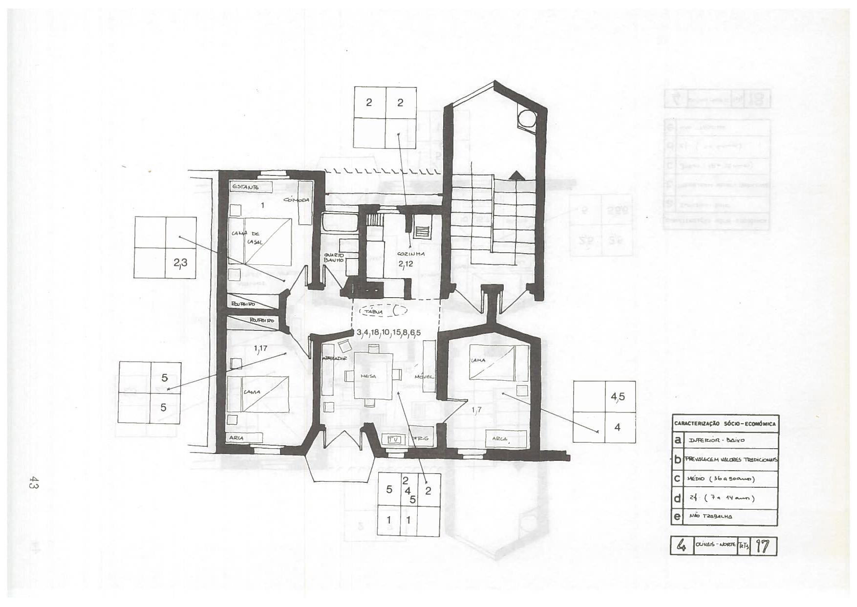
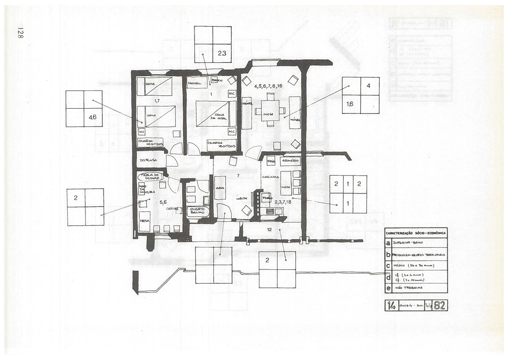
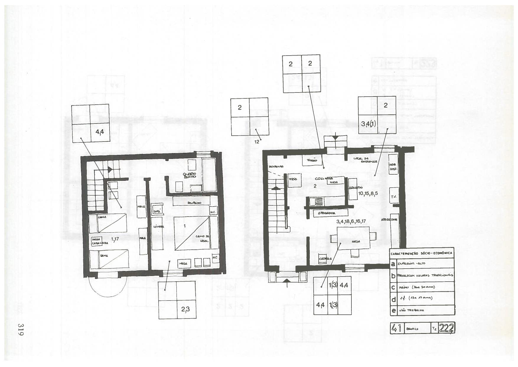
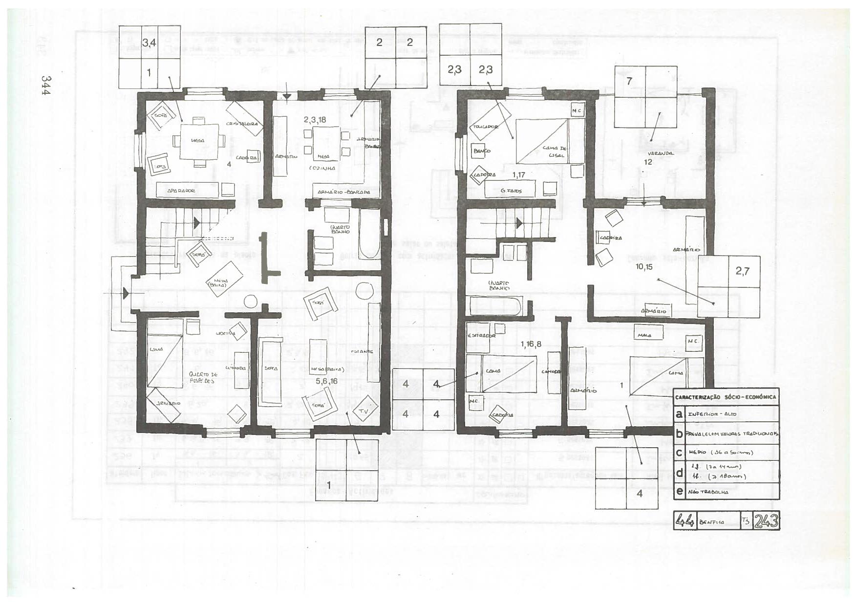
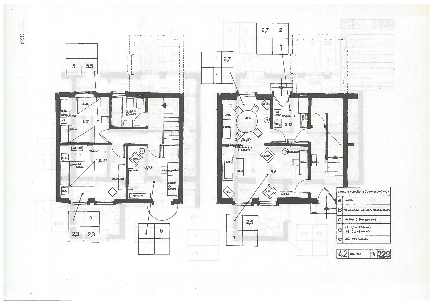
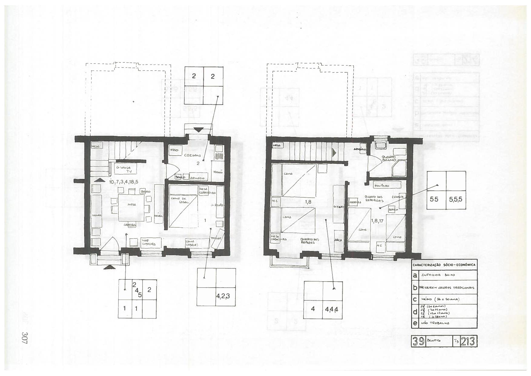
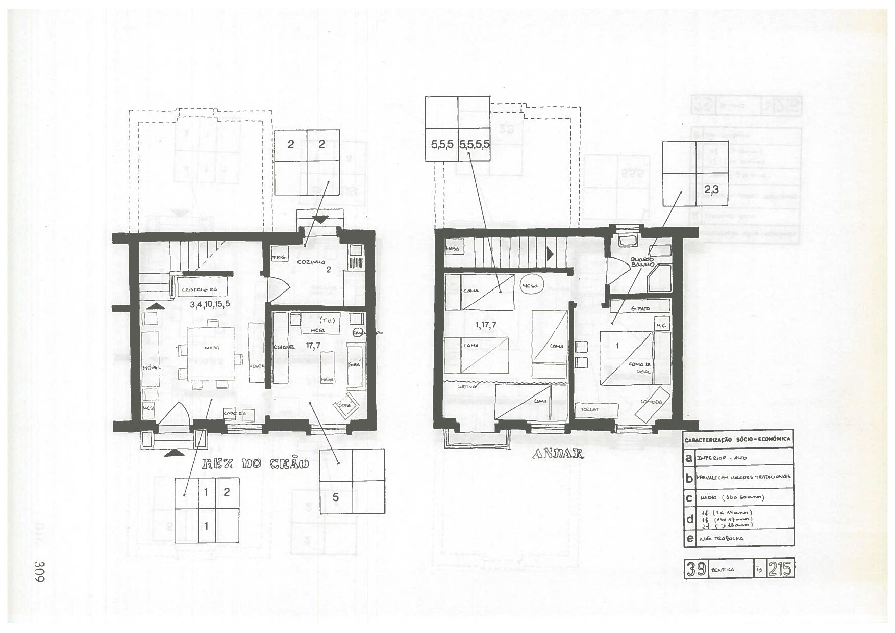
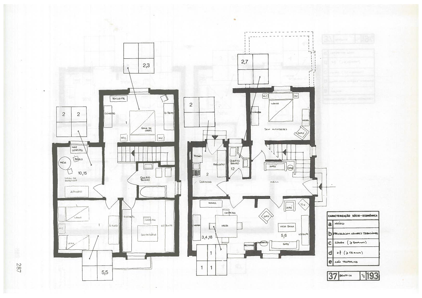
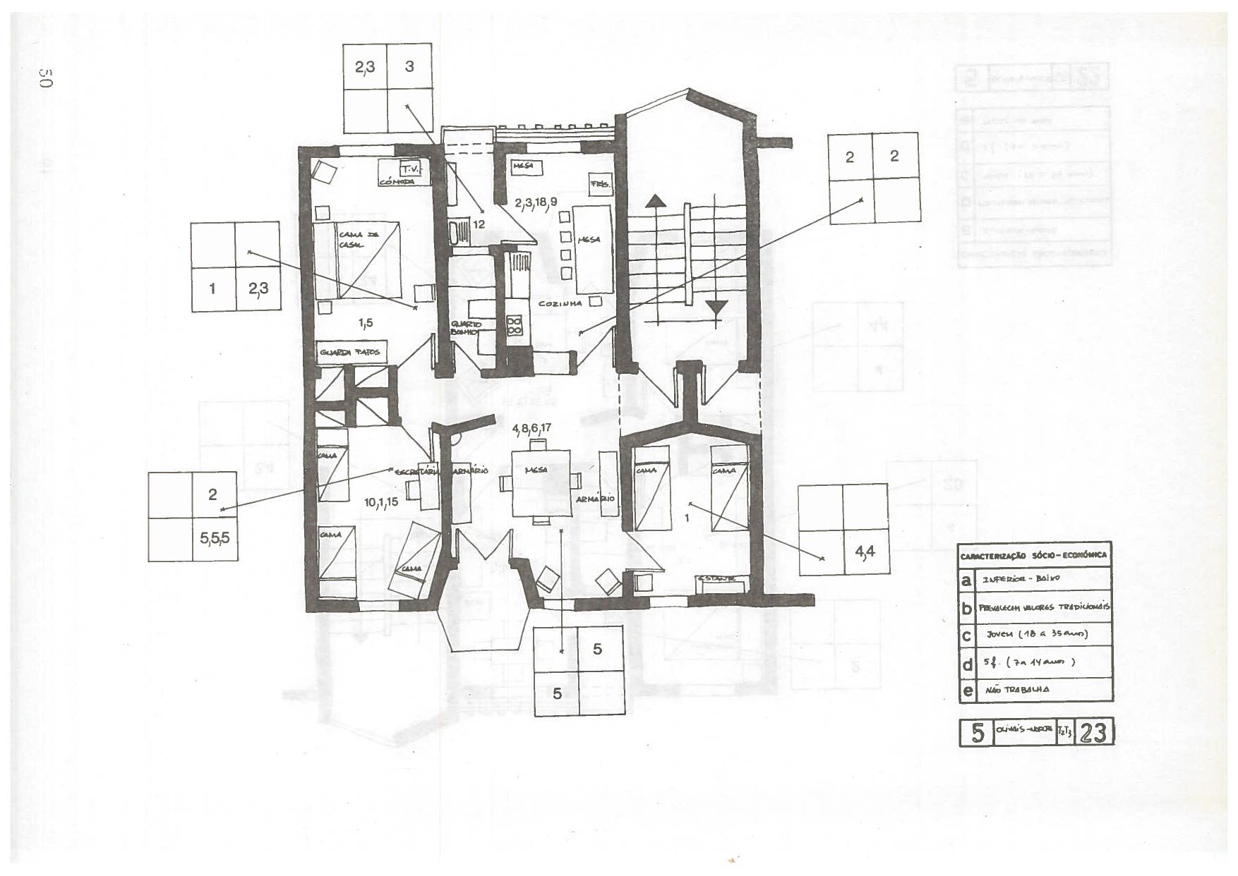
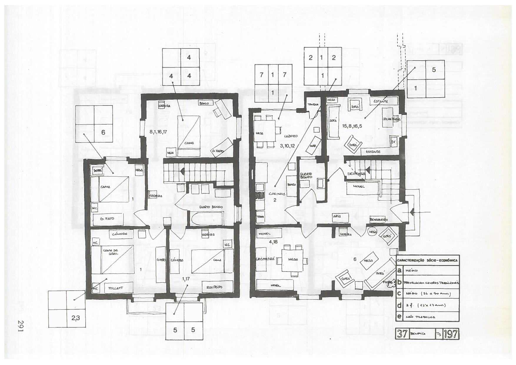
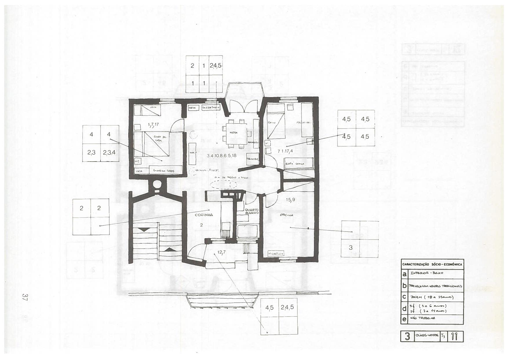
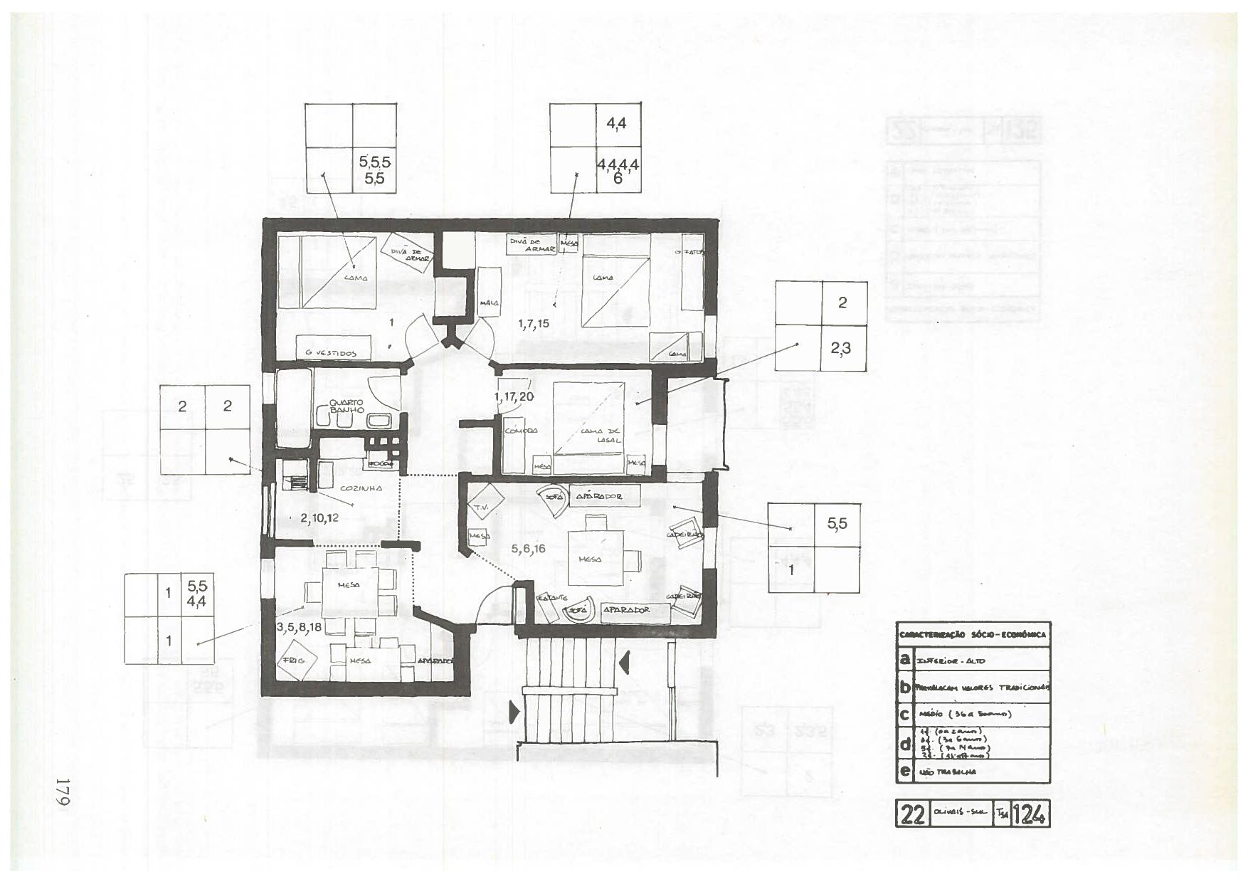
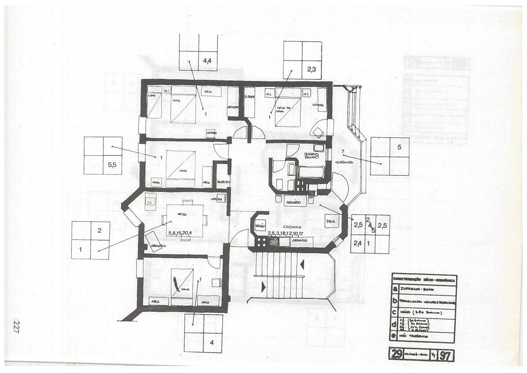
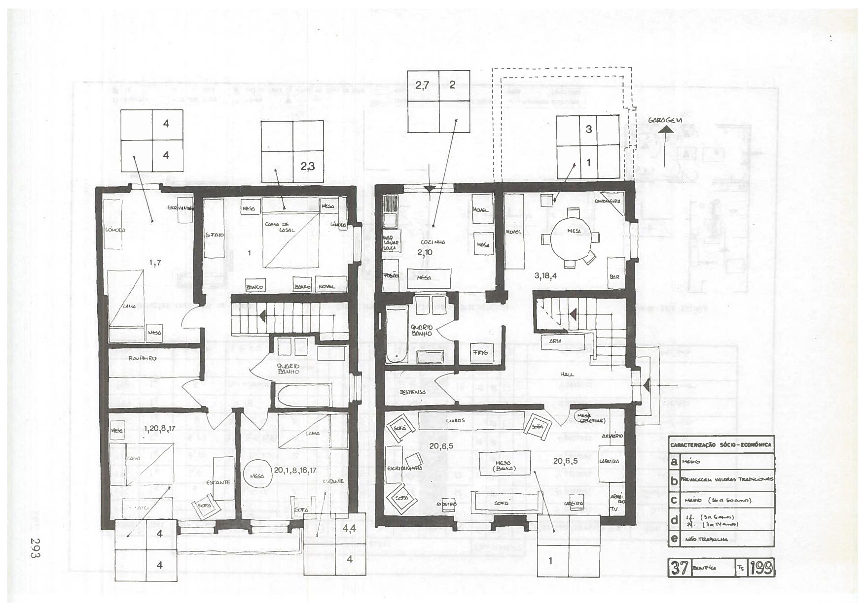
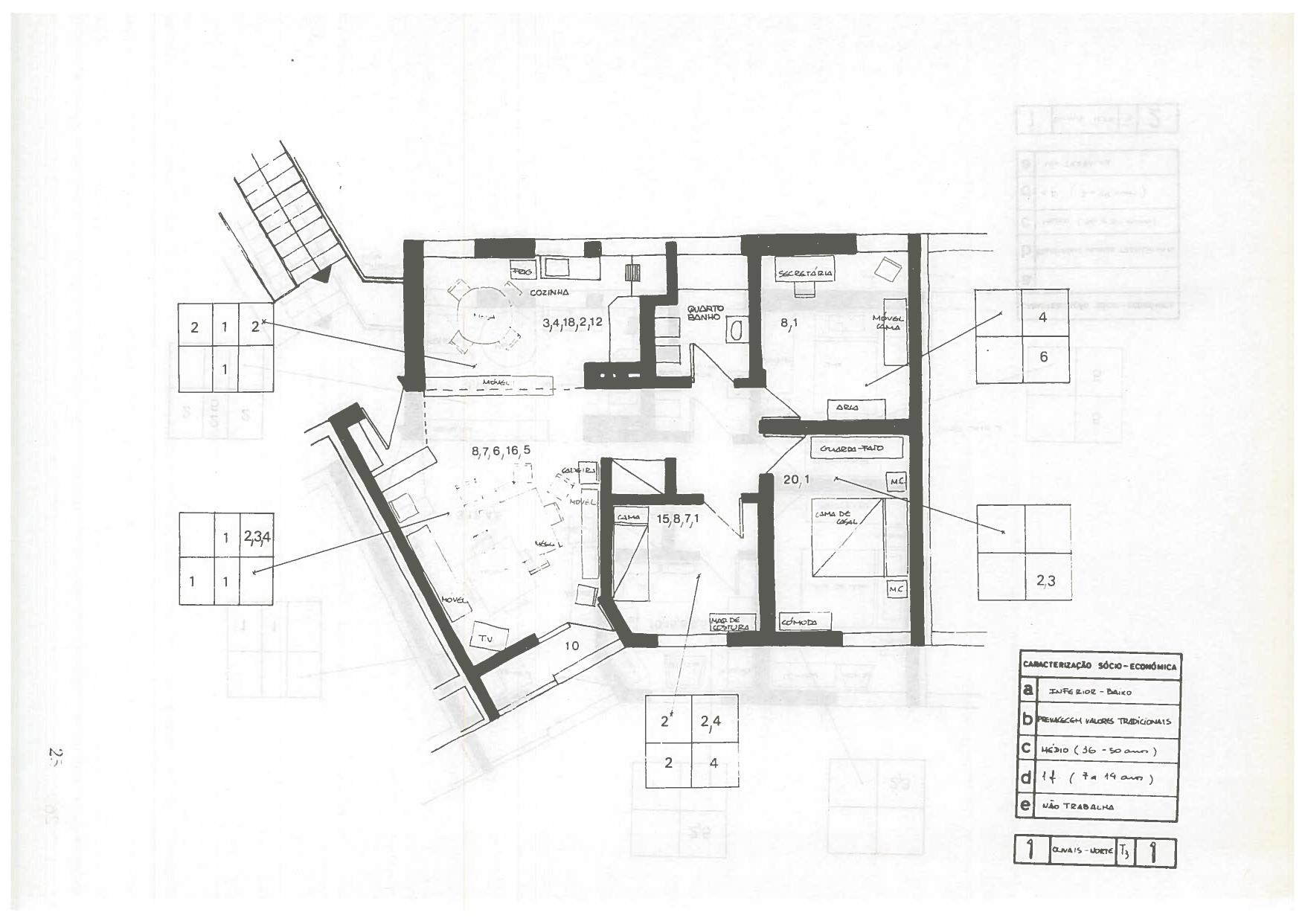
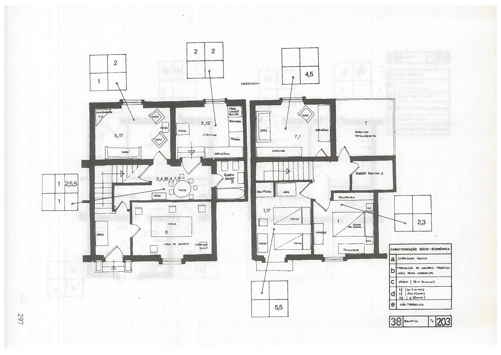
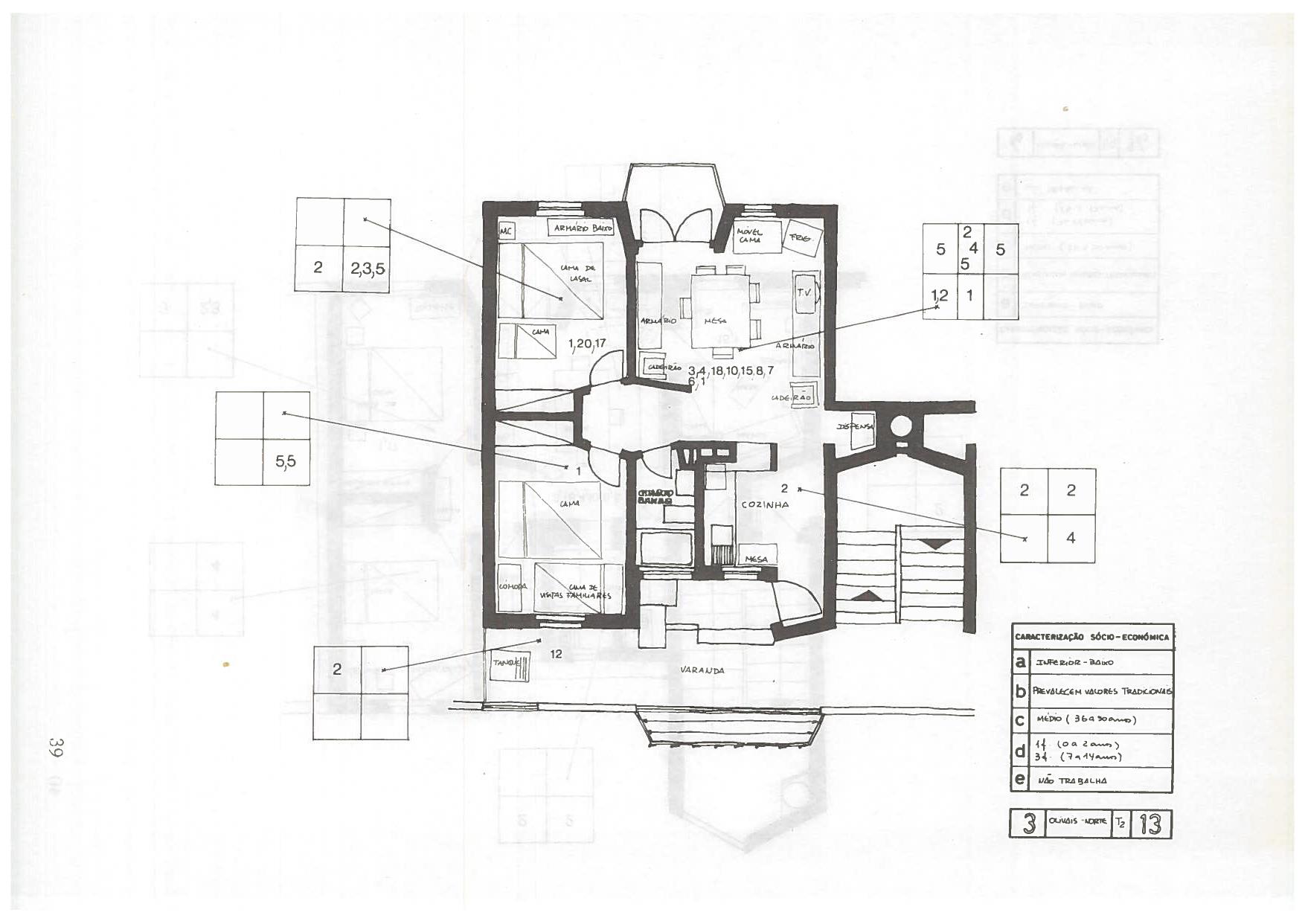
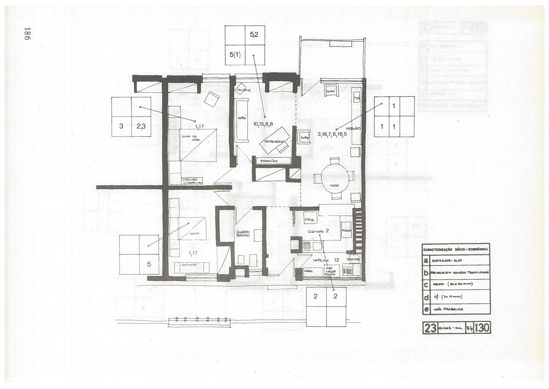
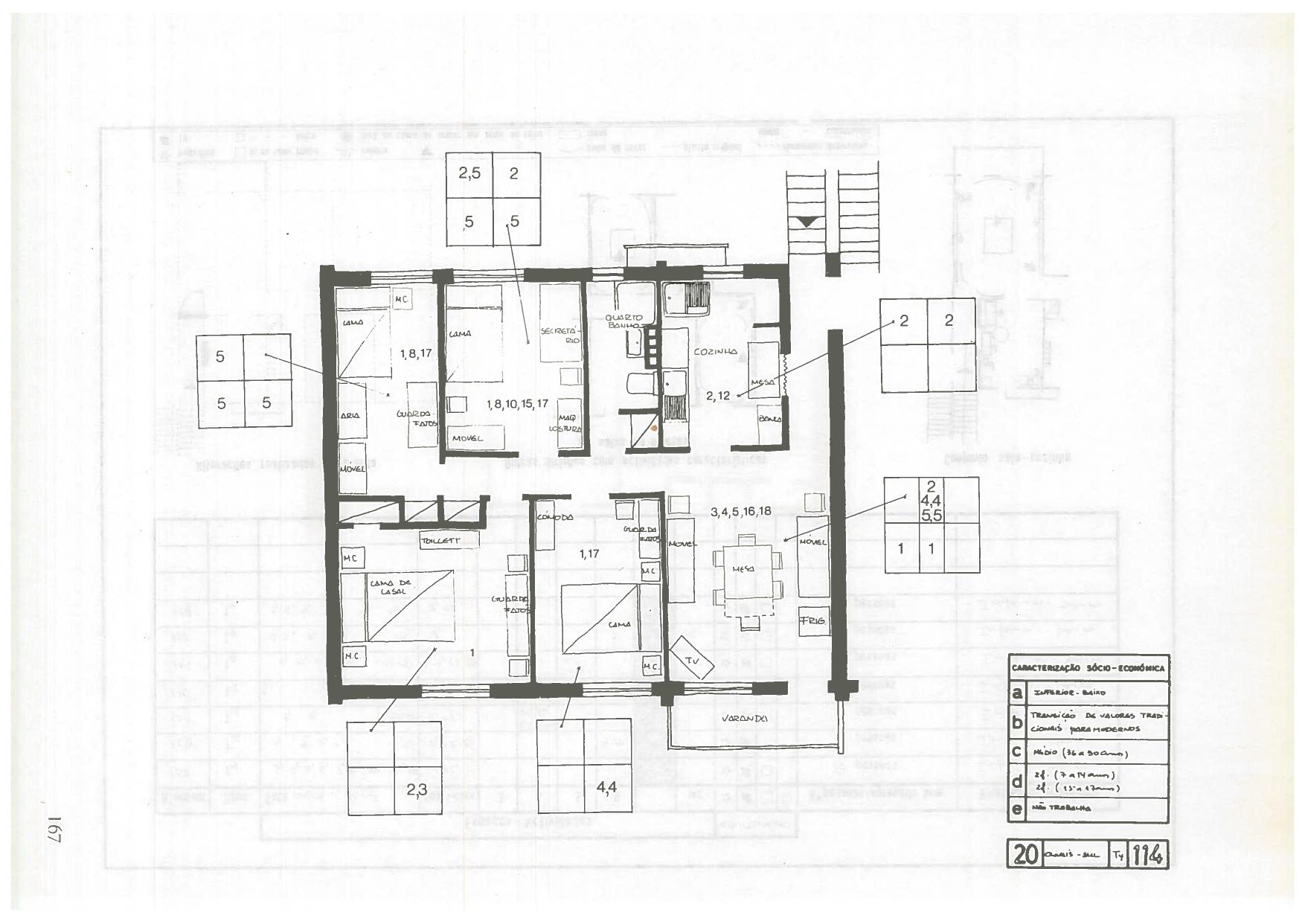
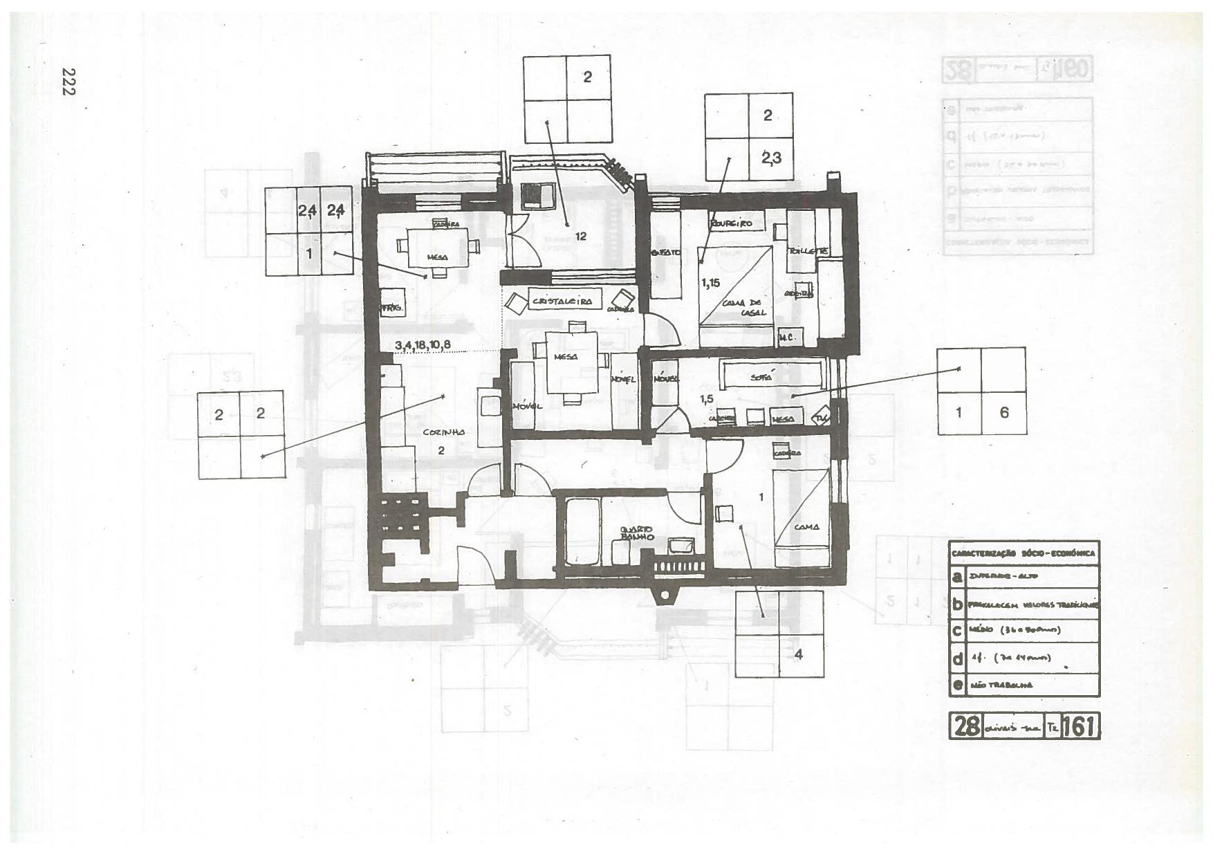
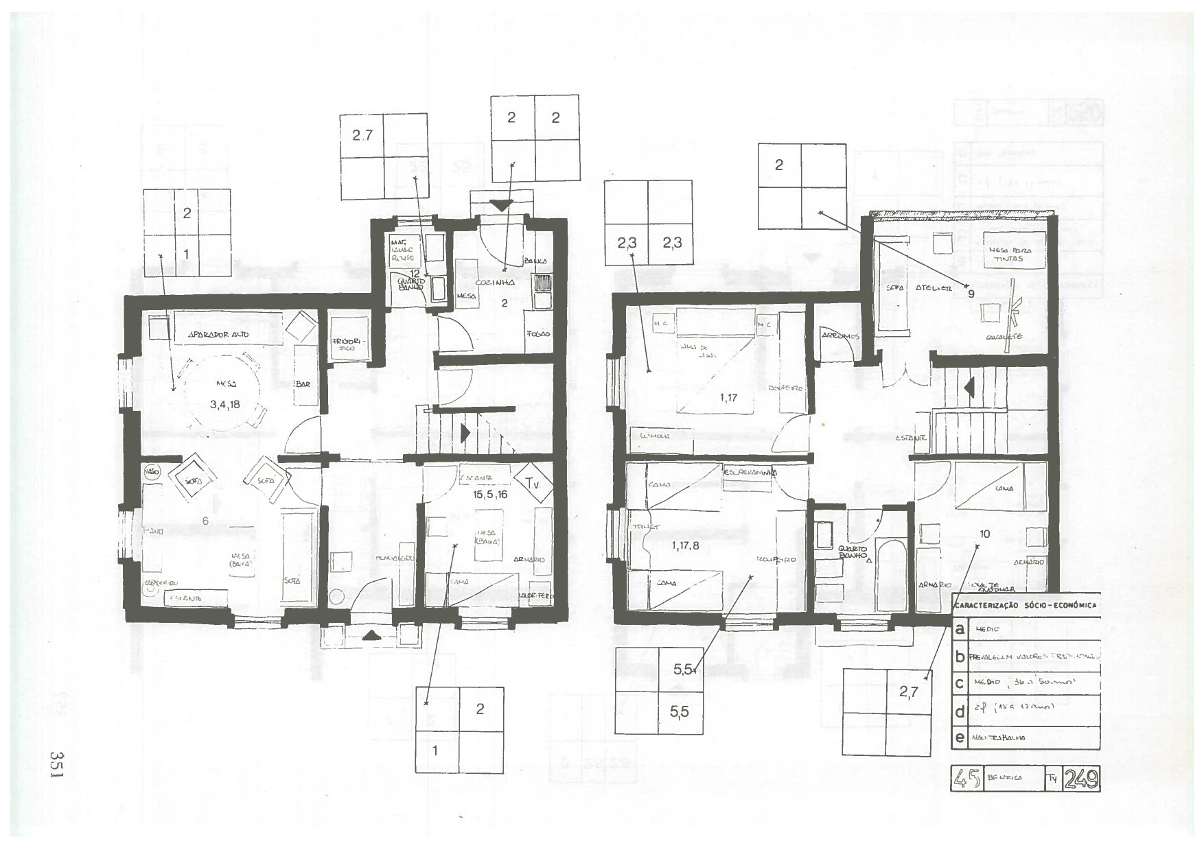
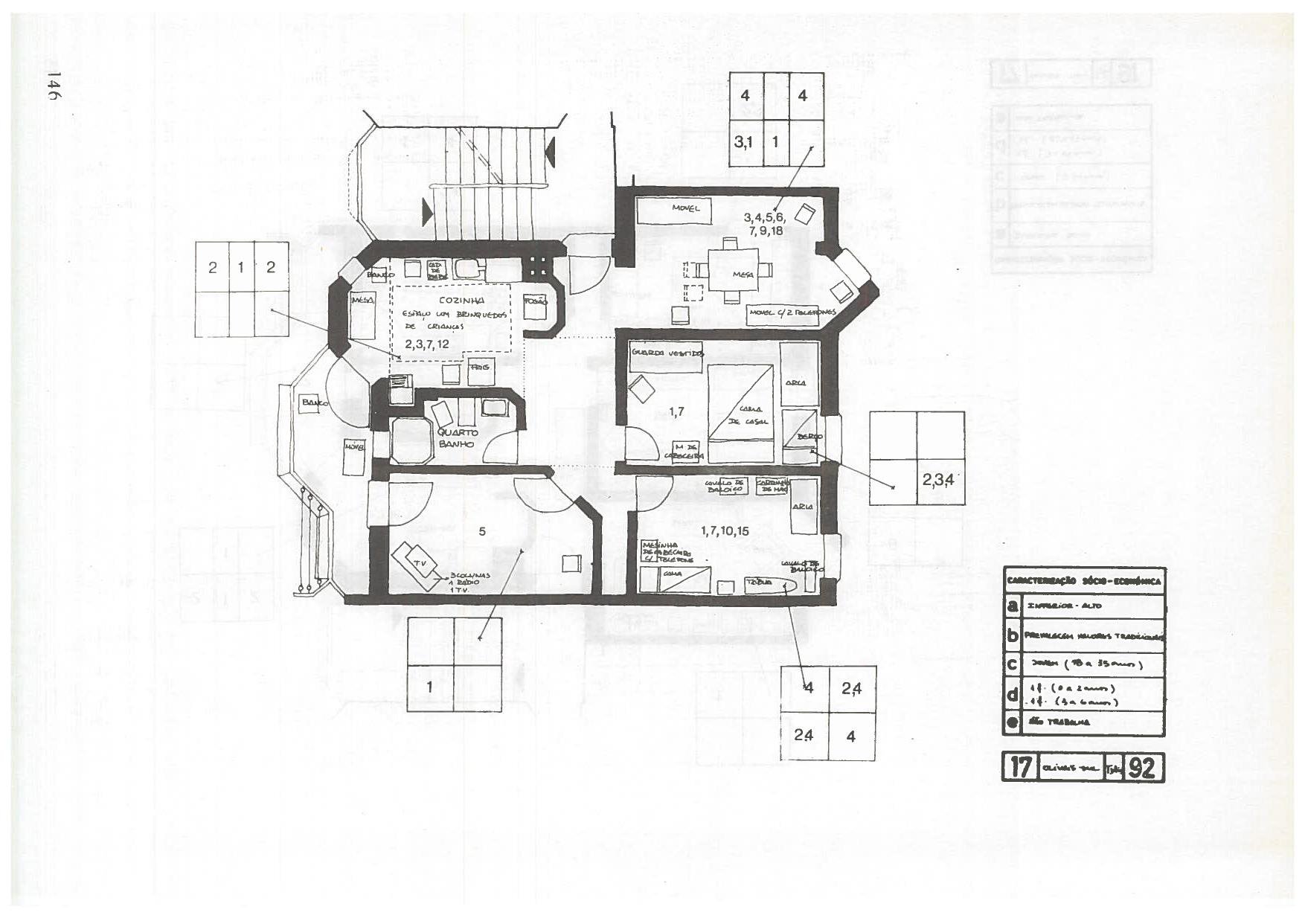
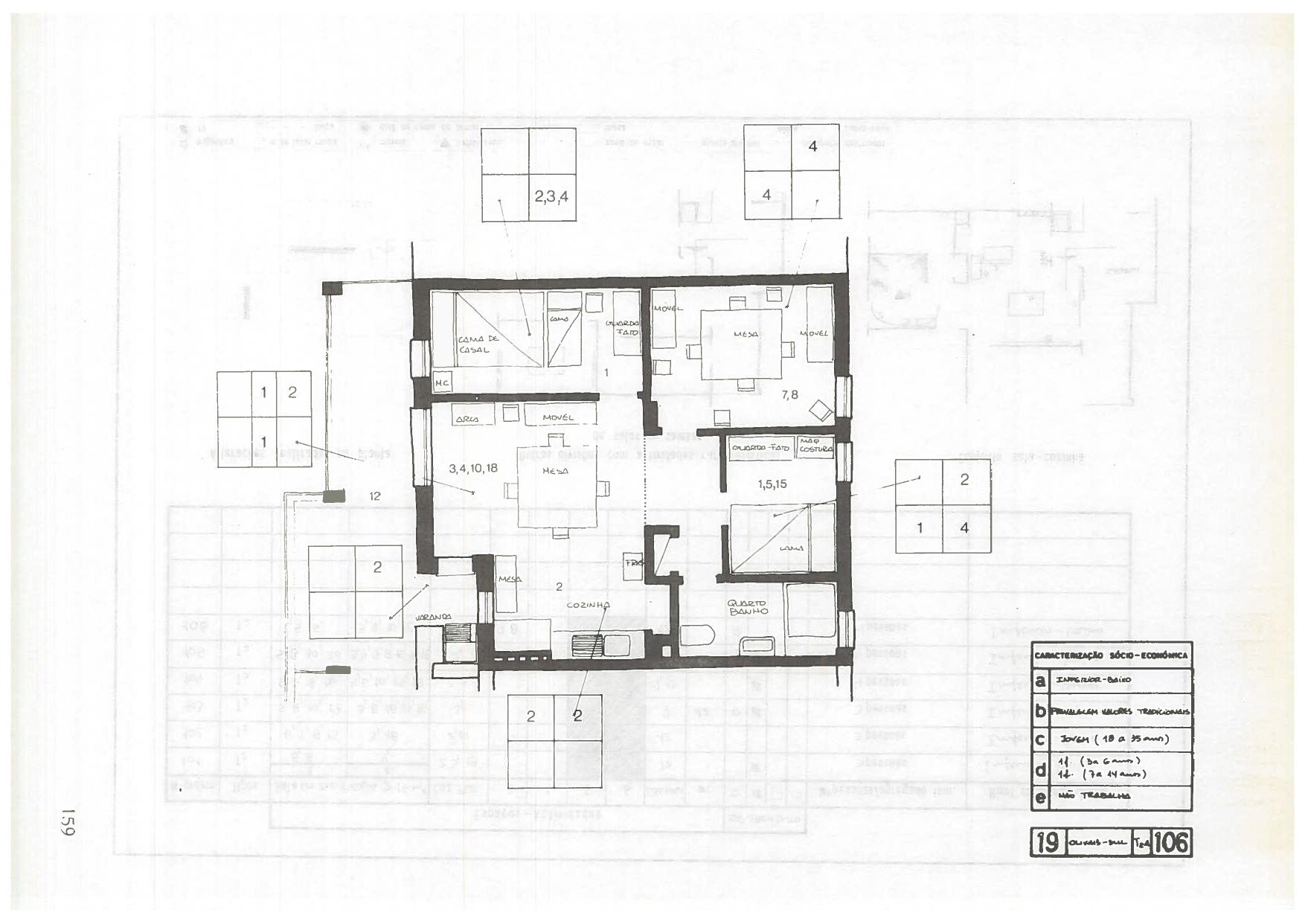
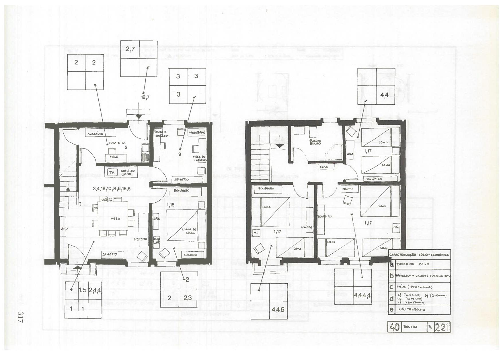
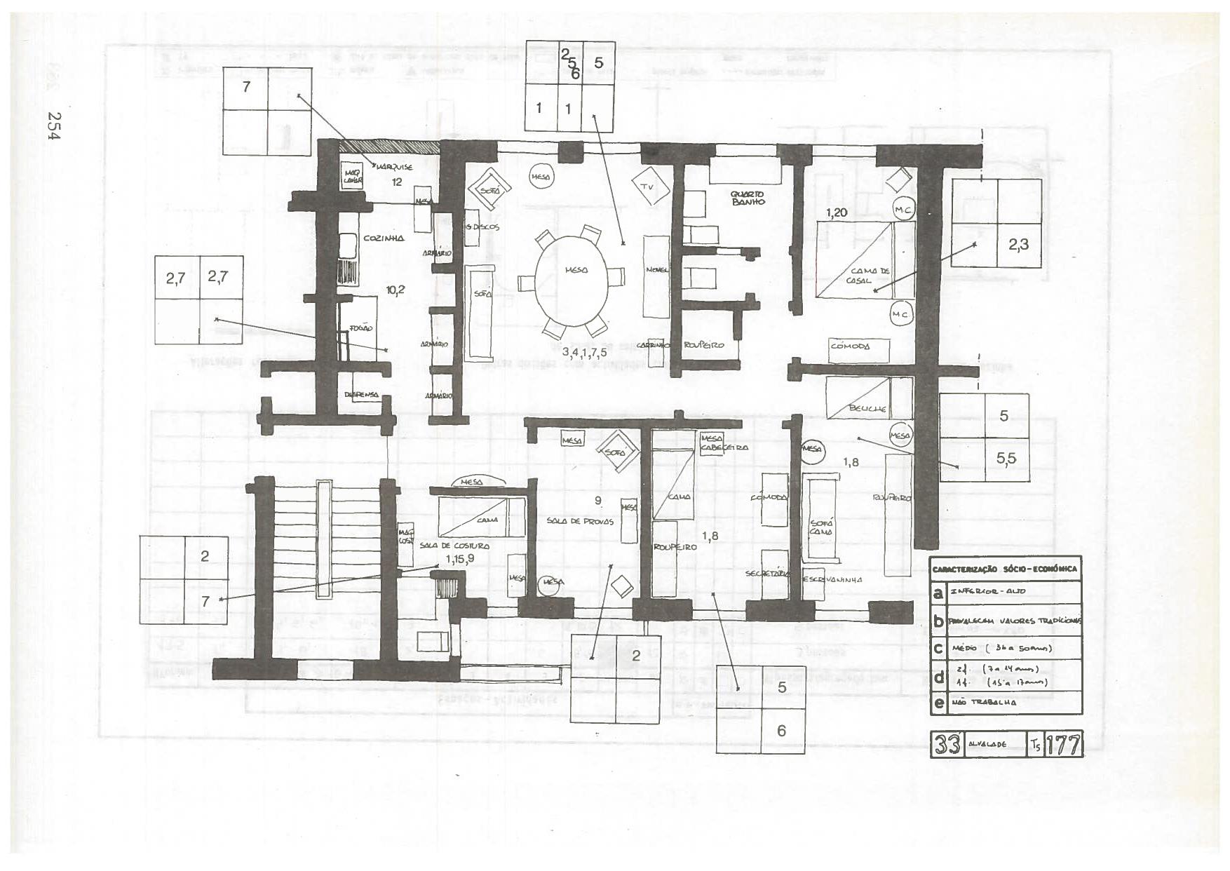
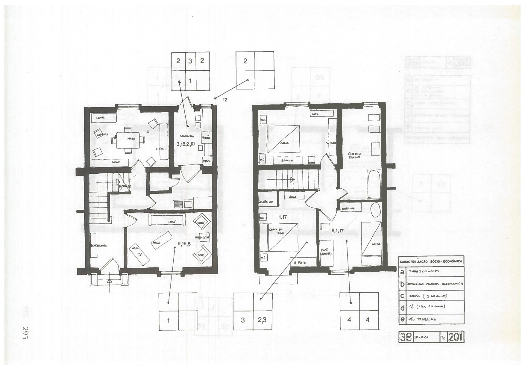
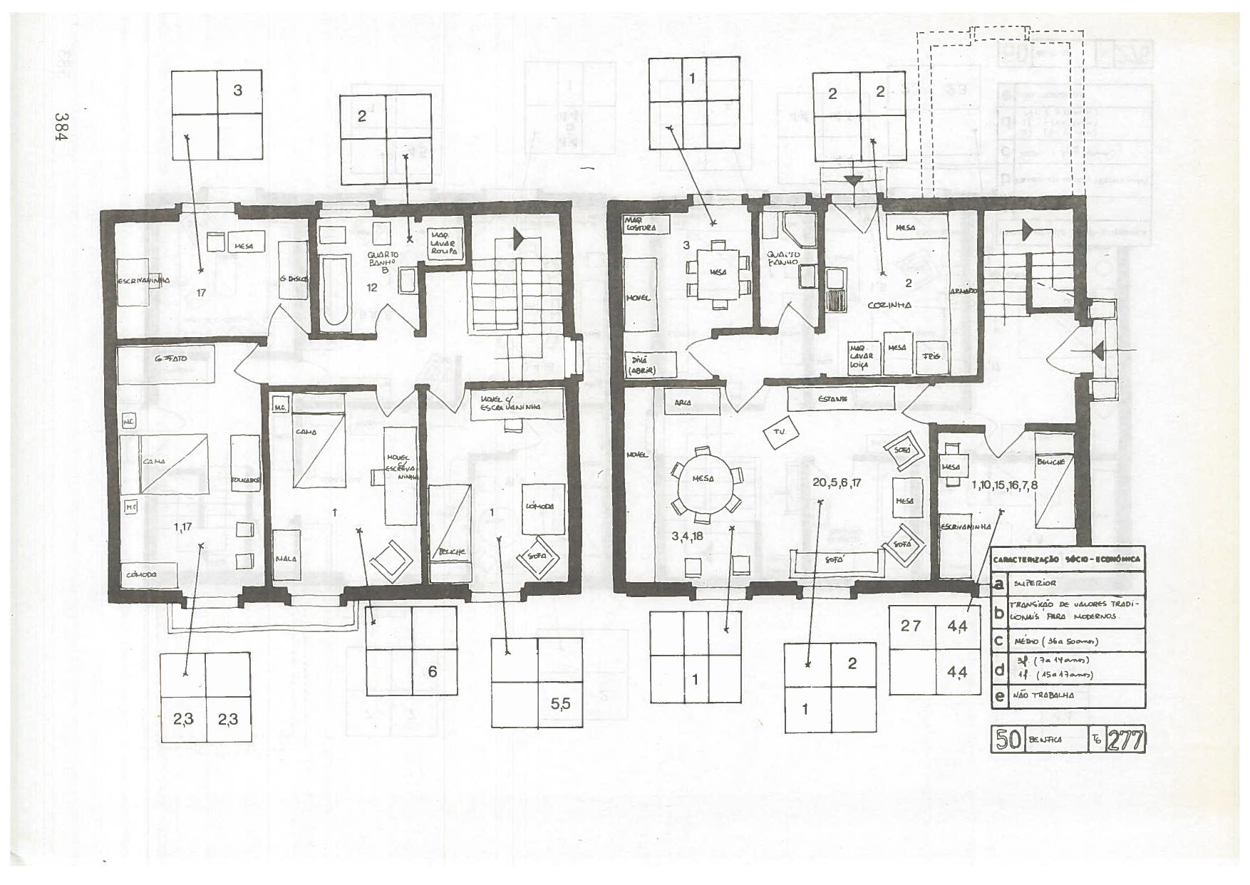
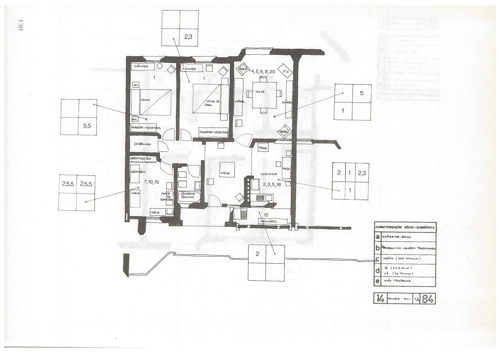
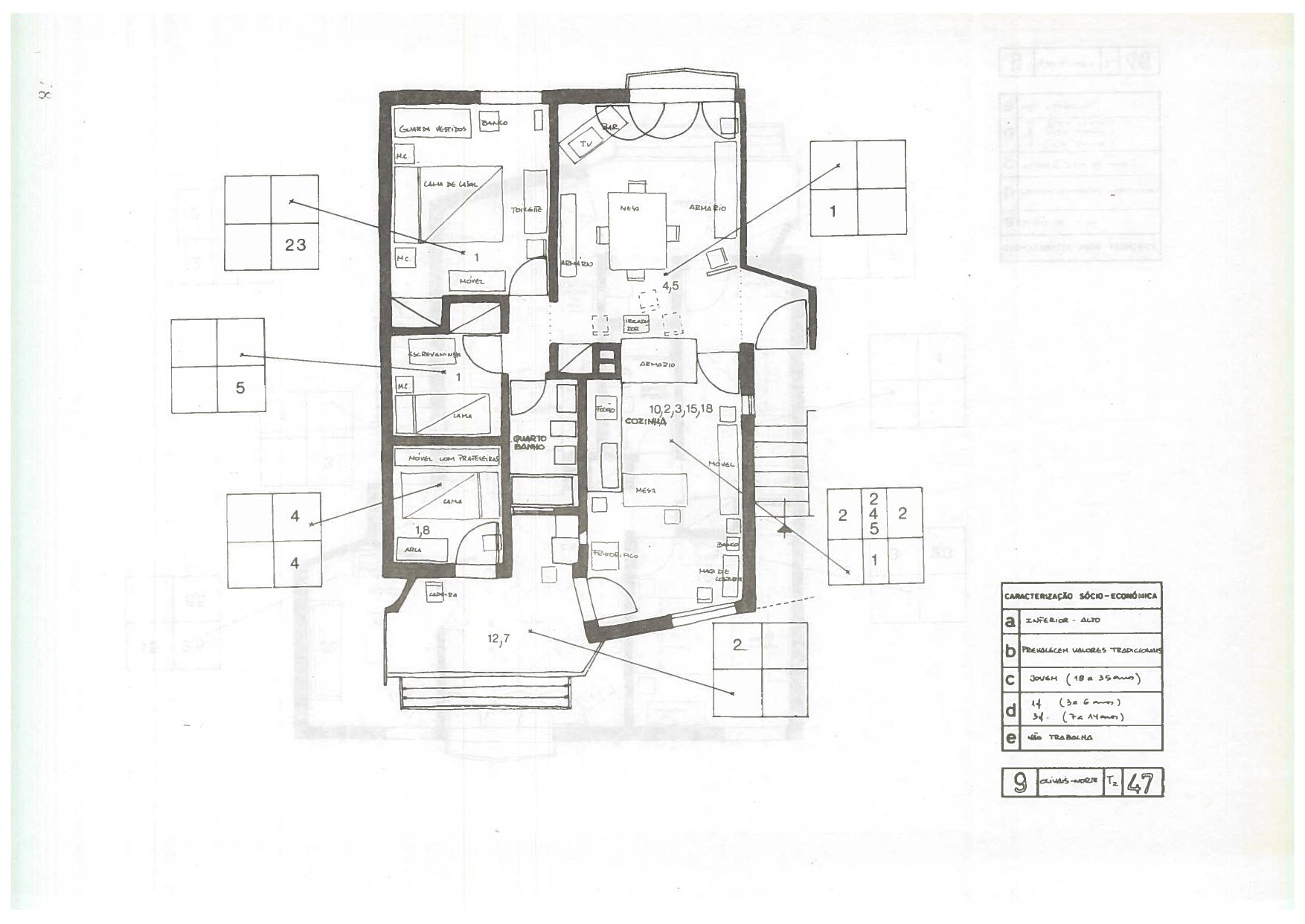
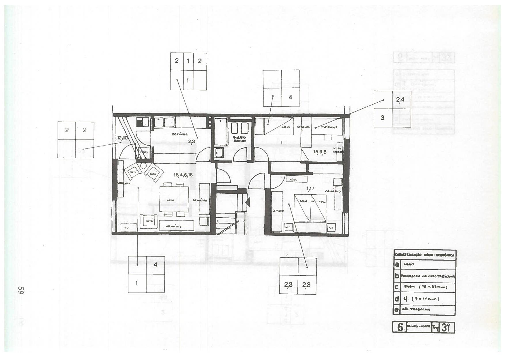
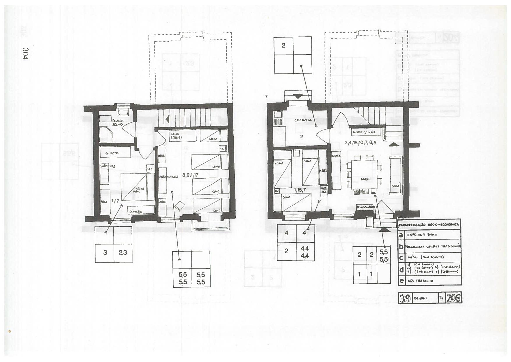
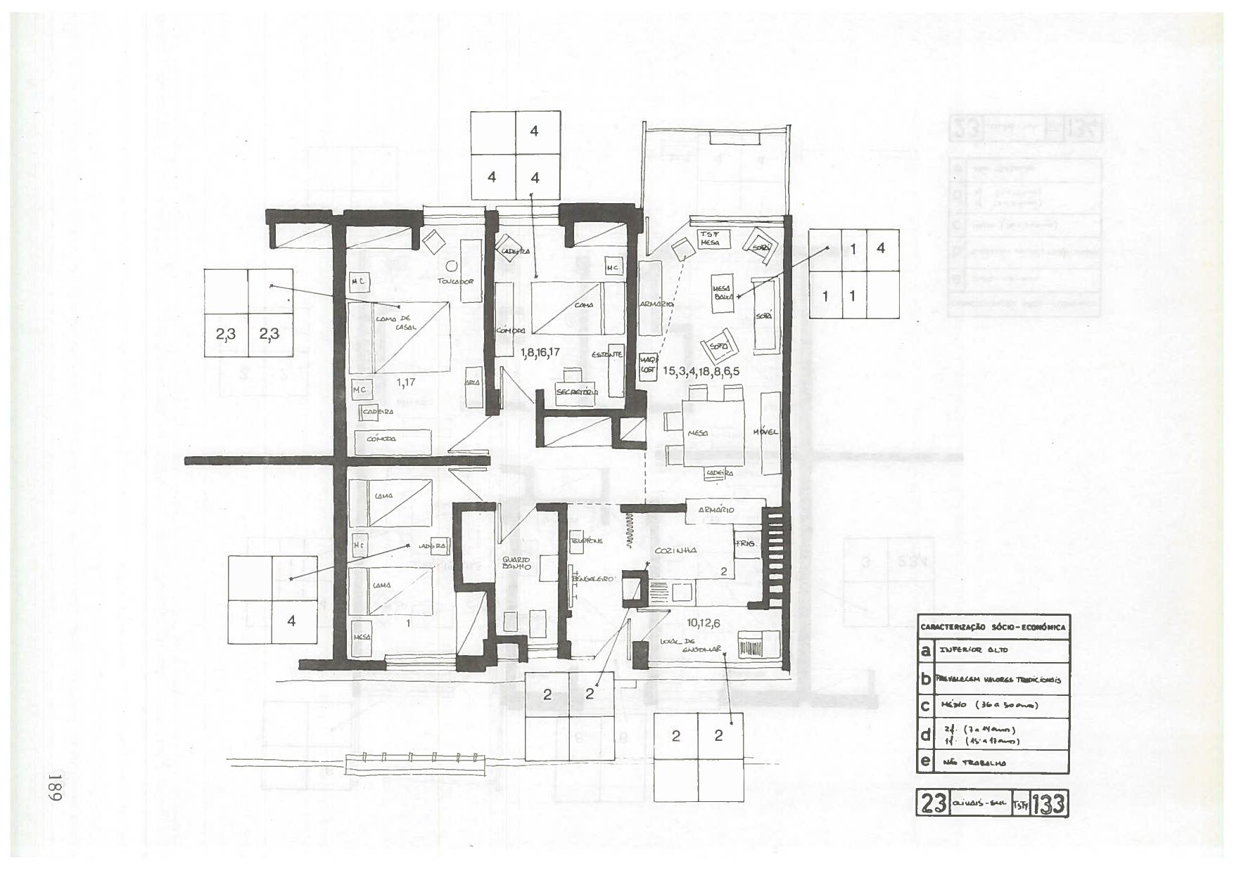
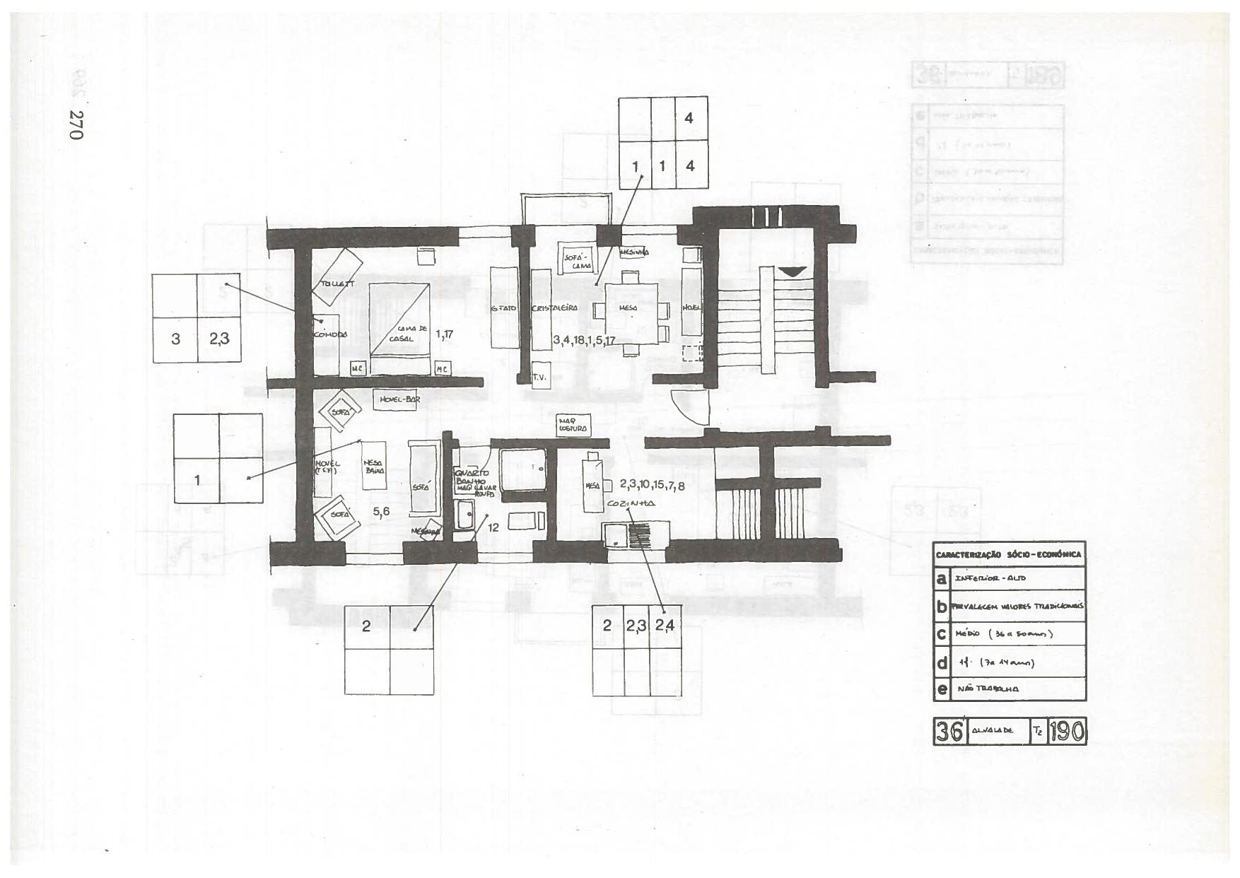
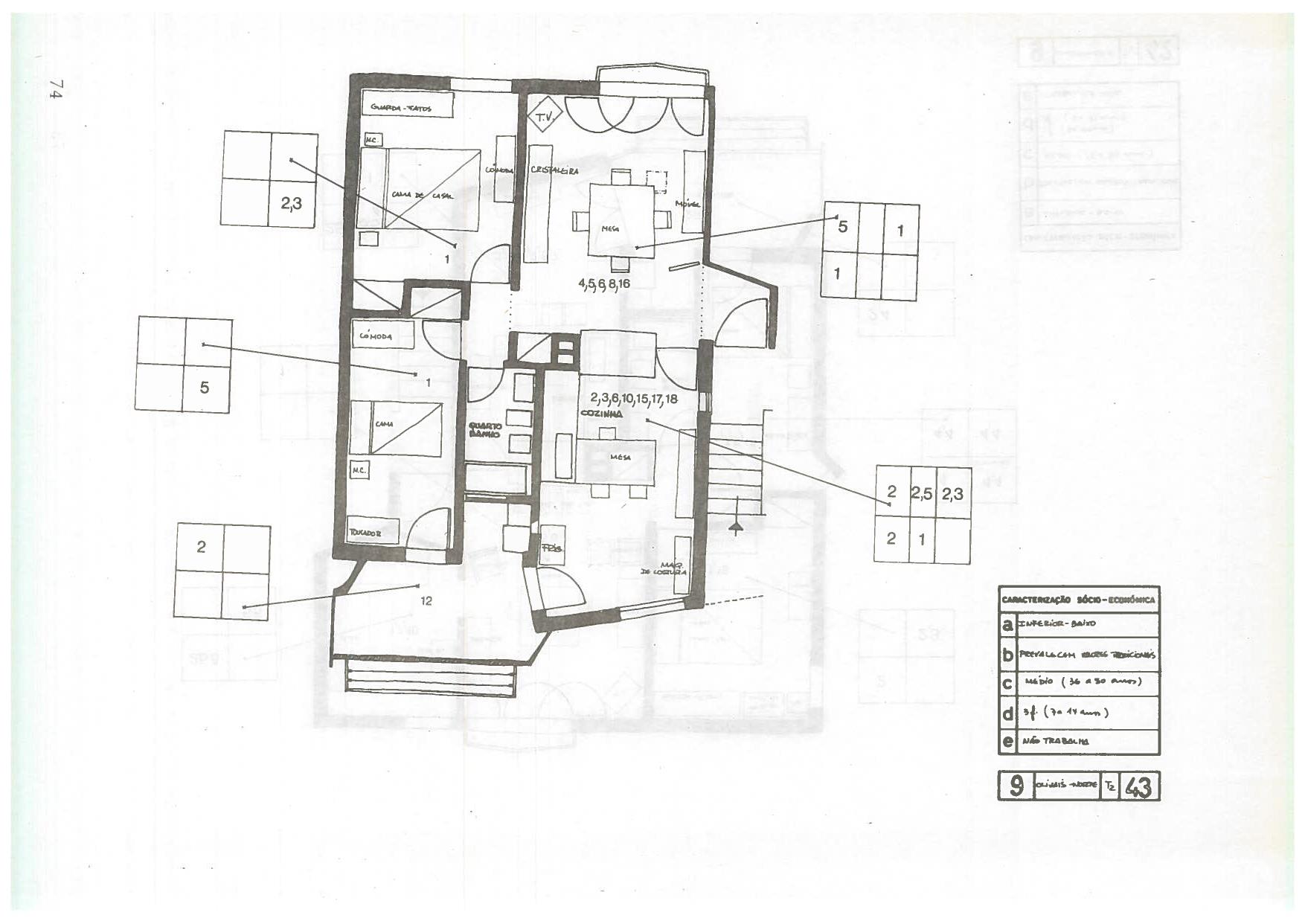
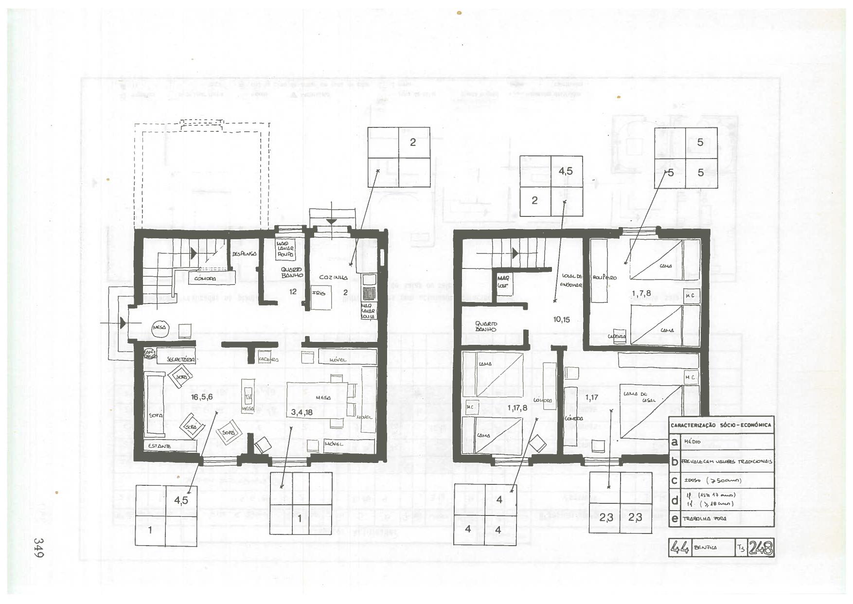
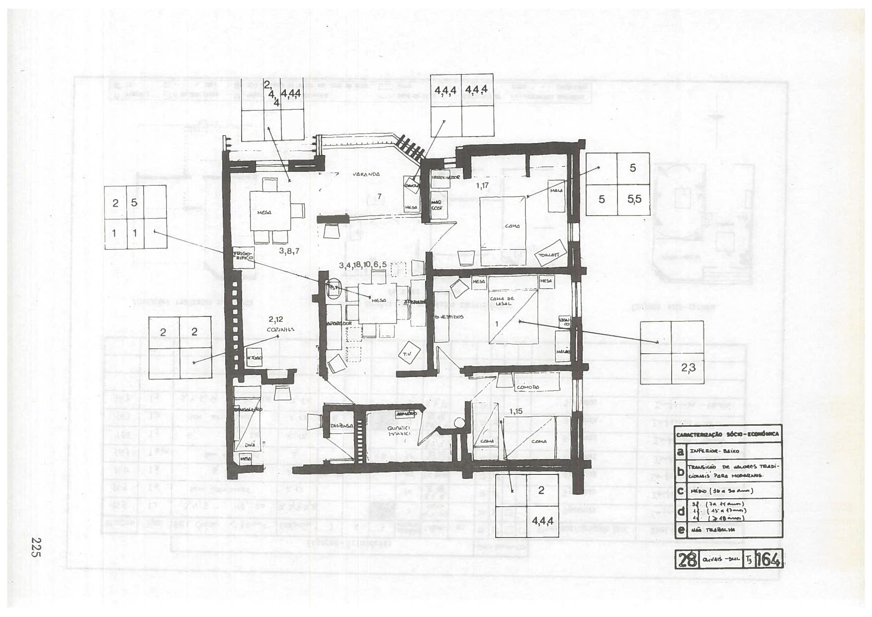
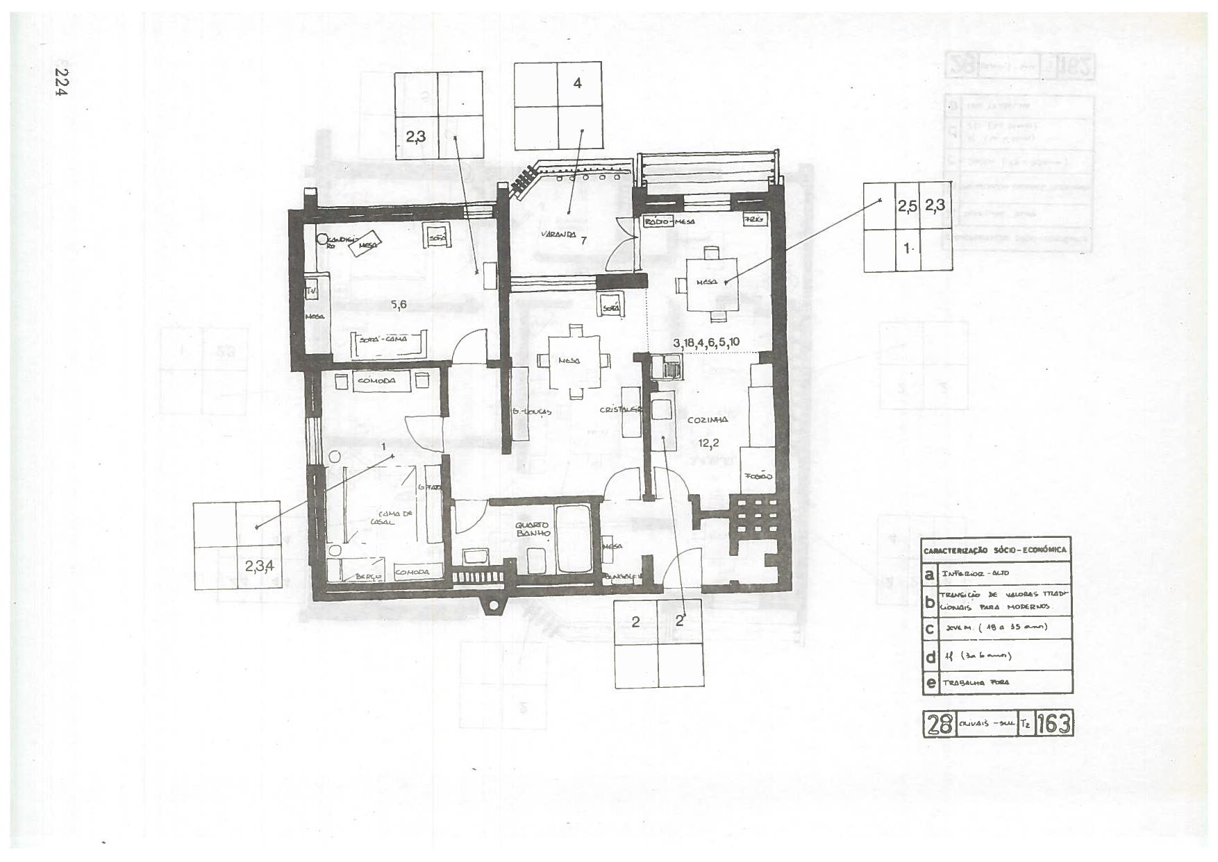
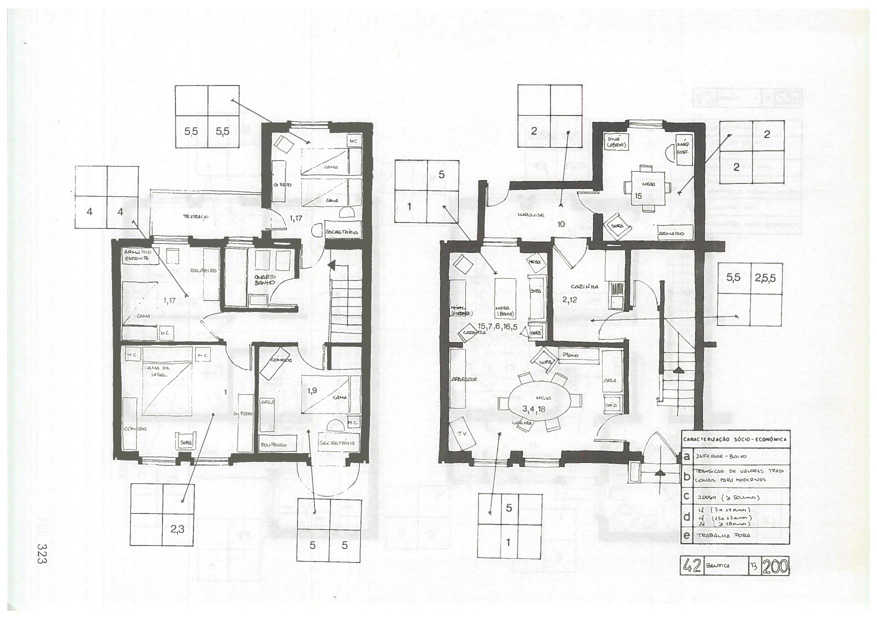
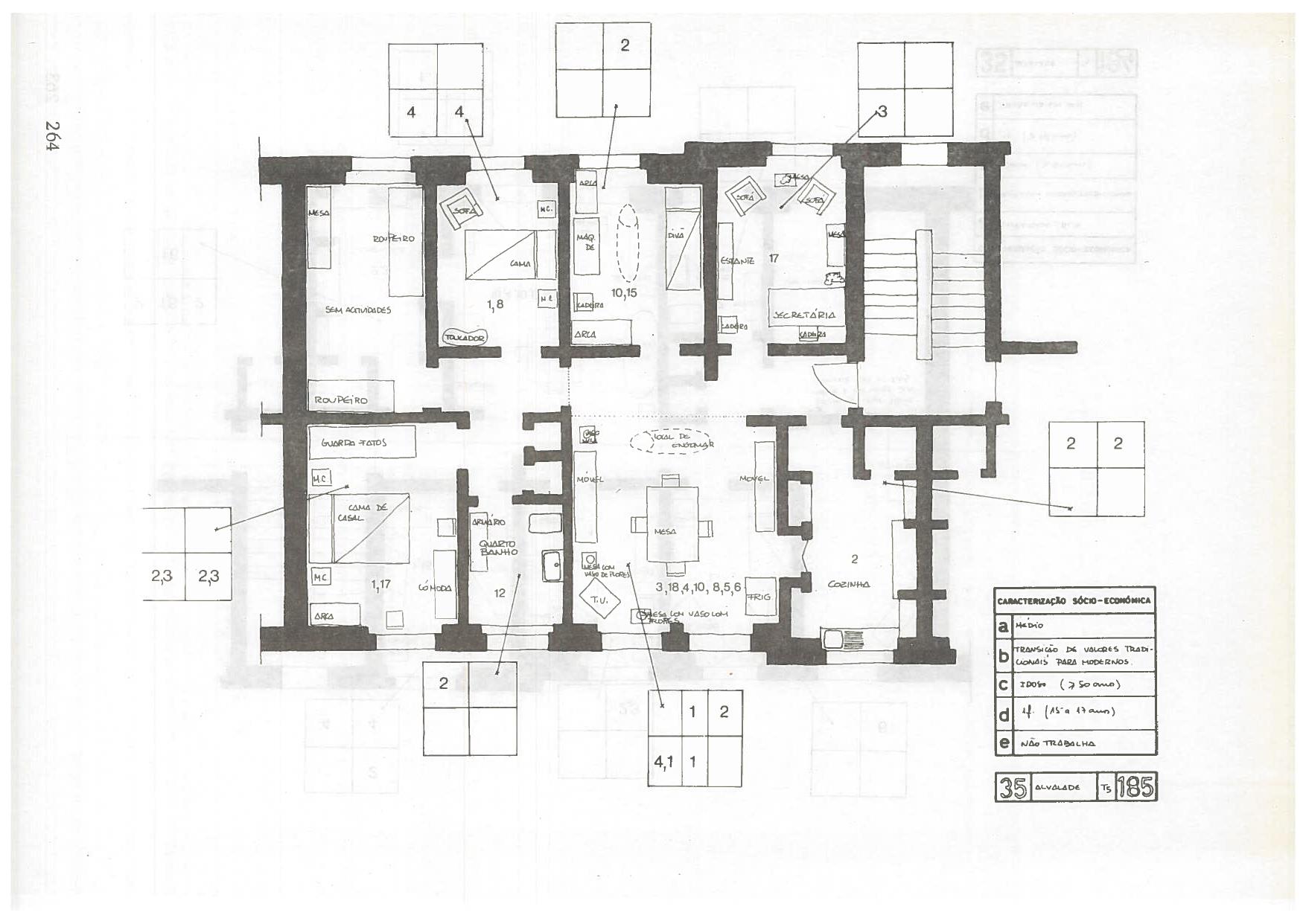
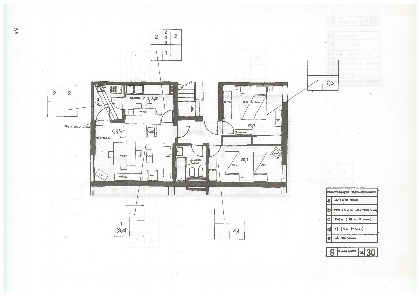
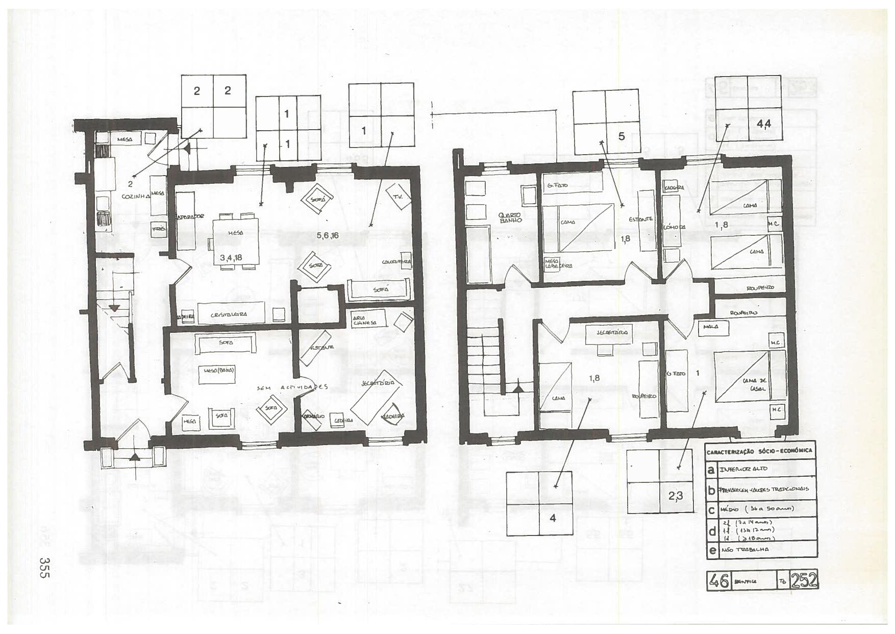
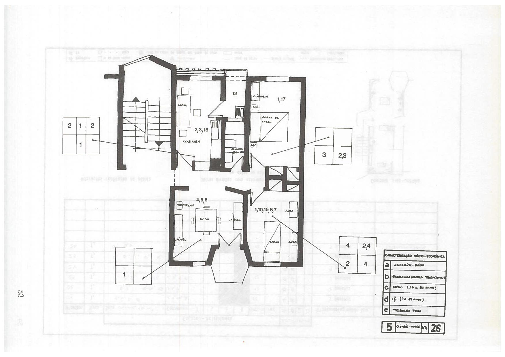
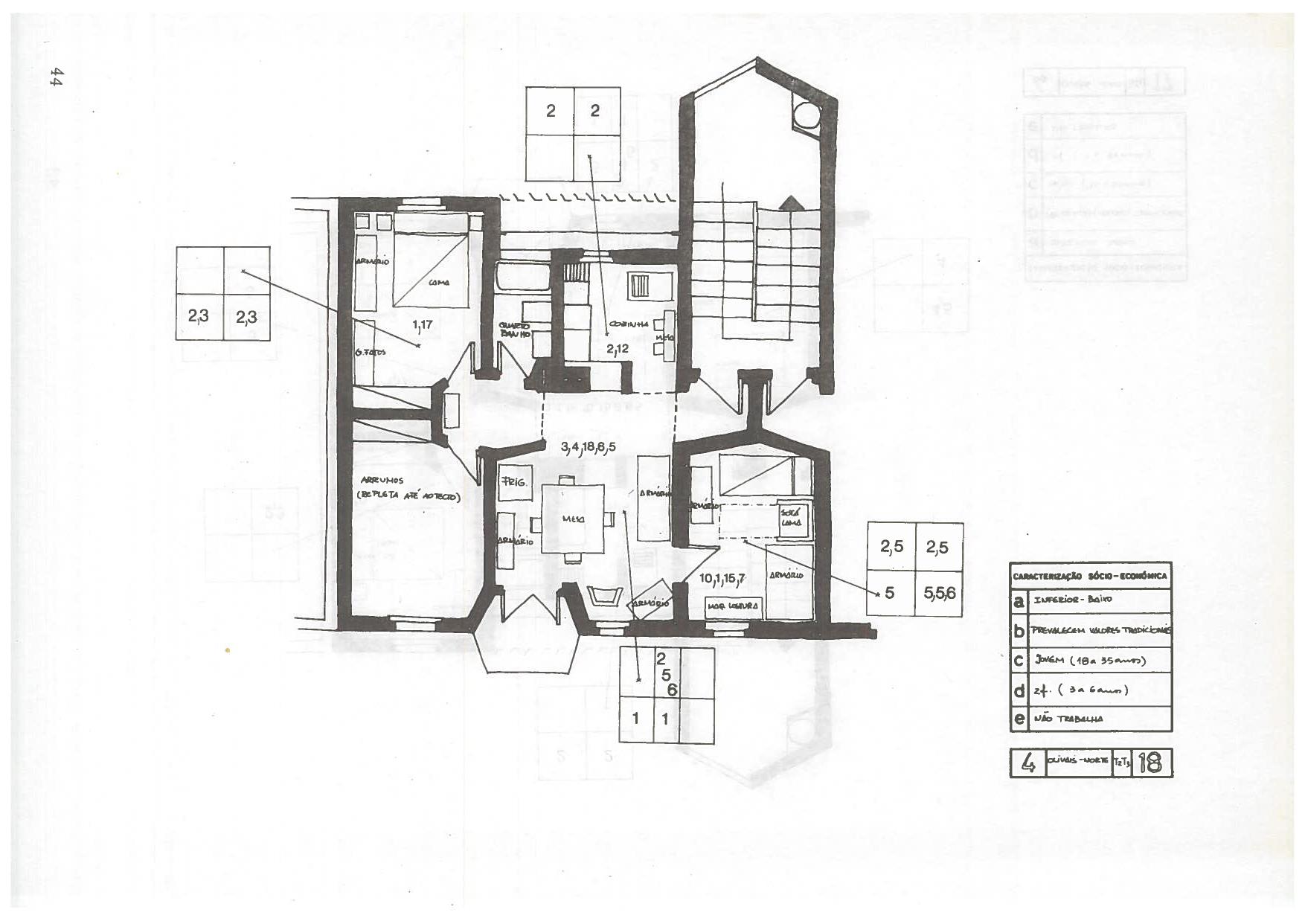
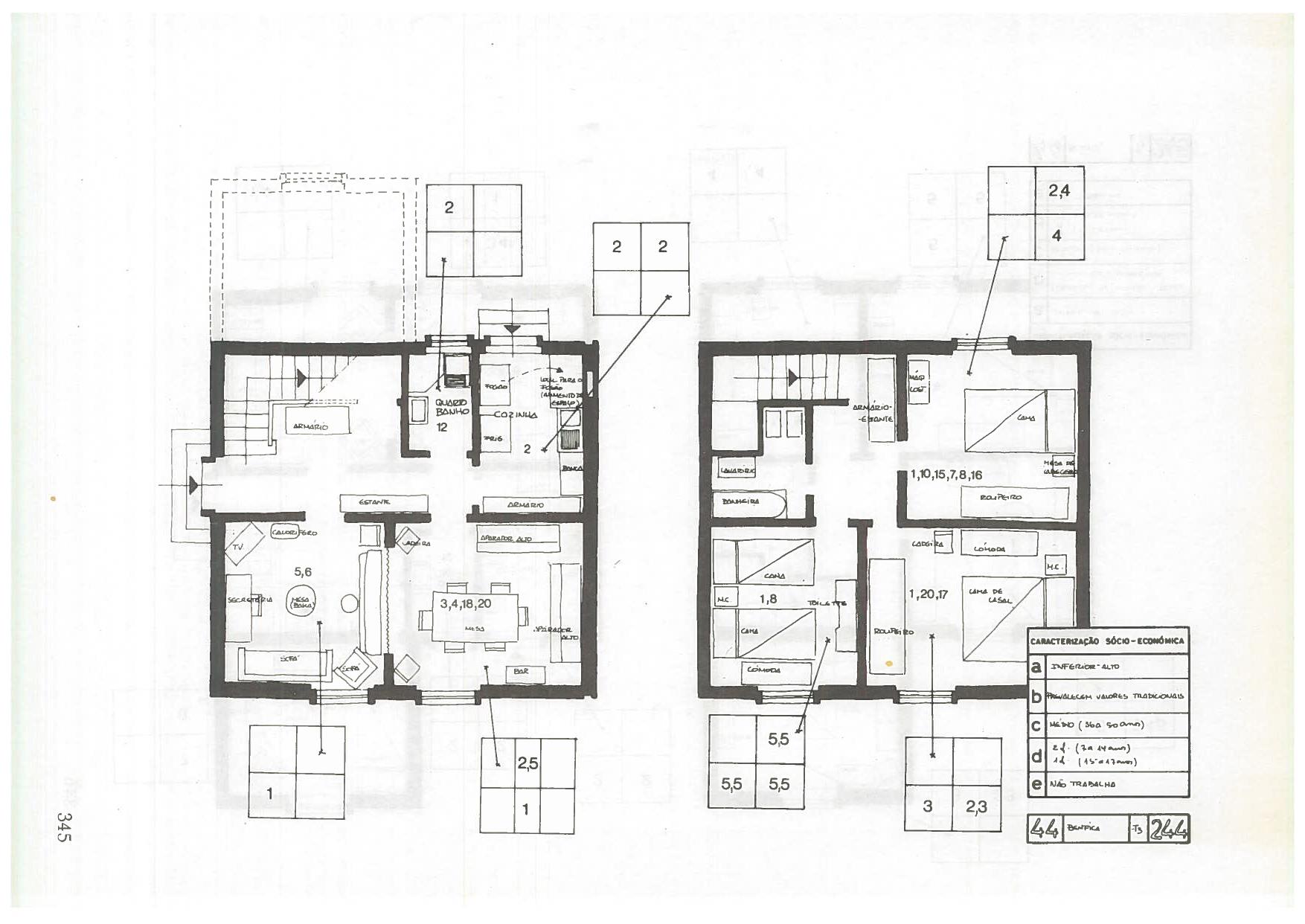
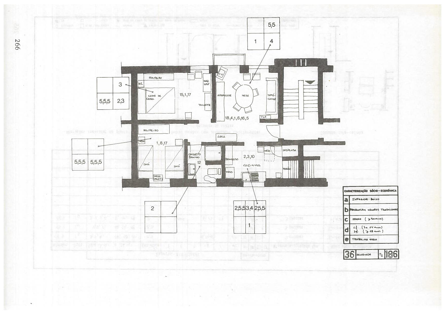
A series of interpretative and quantitative questionnaires were conducted on 300 families. For each family, a plan was published in the survey, providing information on where domestic activities take place, and where and when household members are usually located in the house. The interior space was divided into rooms labelled according to a general function, such as kitchen, living room and bedrooms. For each family, the arrangement and disposition of furniture were registered. In each labelled room, it was represented which domestic activities took place, and which family members were usually present at the different times of day (defined as morning, lunch time, afternoon, evening and night).

Household Reference: 10

Household

Ref10
Plan2
NeighbourhoodOlivais Norte
Social Classlower lower
Social Valuestraditional
Agesadult (36-50)
Women´s Workdoesn't work
show page of the House's Plan

Rooms

NumTypeTUFA (m2)
01bedroom7.1
02bedroom9.1
03bedroom10.9
04kitchen10.1
05livingroom10.1
C1transition space4.85
E0transition space1.26
E1EXTERIOR 
V2exterior space2.97
W0WC3.7

Inhabitants

TypeRefIcon
sonF-01
daughterF-02
womanM
other relativeOP
manP

Children´s Ages

TypeNum
3 to 6 y.o.1
7 to 14 y.o.1

Choose:

Activities and Daily Movements

Floor Plan

All data from Pereira, Luz Valente, & Gago, Maria Amélia Corrêa (1984). Inquérito à habitação urbana. Laboratório Nacional de Engenharia Civil.